Vuokrataan toimistotilat - Tampere
Aleksanterinkatu 32, Keskusta, 33100 Tampere #10830226
Osoite
Aleksanterinkatu 32, 33100 Tampere
Tilatyyppi
Toimistotilaa
249 m2
Muuta
Vuokrataan toimistotilaa Ratinanlinnasta Aleksanterinkadulta.
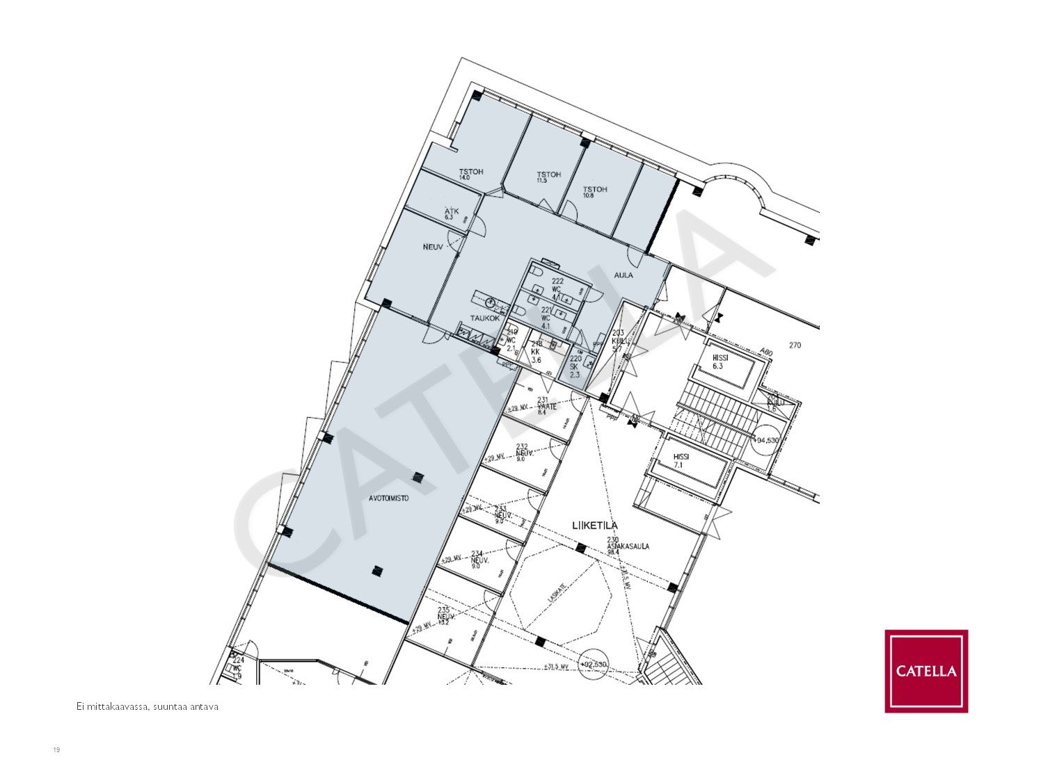
2. kerroksen valoisa toimistotila, jossa 4 toimistohuonetta, neukkari sekä avotilaa. Toimistotiloissa lattiat tekstiilipalamattoa ja aulatiloissa parkettia.
Autopaikkoja vuokrattavissa kiinteistön autohallista.
Kysy lisää ja sovi näyttö!
Sami Saraste
Myyntipäällikkö, LKV
sami.saraste@catella.com
050 3014 455
Tilanhakijalle palvelumme ovat maksuttomia.
Catella Property Oy on valtakunnallinen toimitilojen vuokraukseen ja myyntiin keskittynyt kiinteistönvälitysyritys.
Kysy paikallisilta ammattitaitoisilta välittäjiltämme myös muita välityksessämme olevia toimitilakohteita.
Välittäjiemme yhteystiedot ja lisää välitettäviä tilakohteita verkkosivuillamme: www.toimitilat.catella.fi.
Ota yhteyttä!
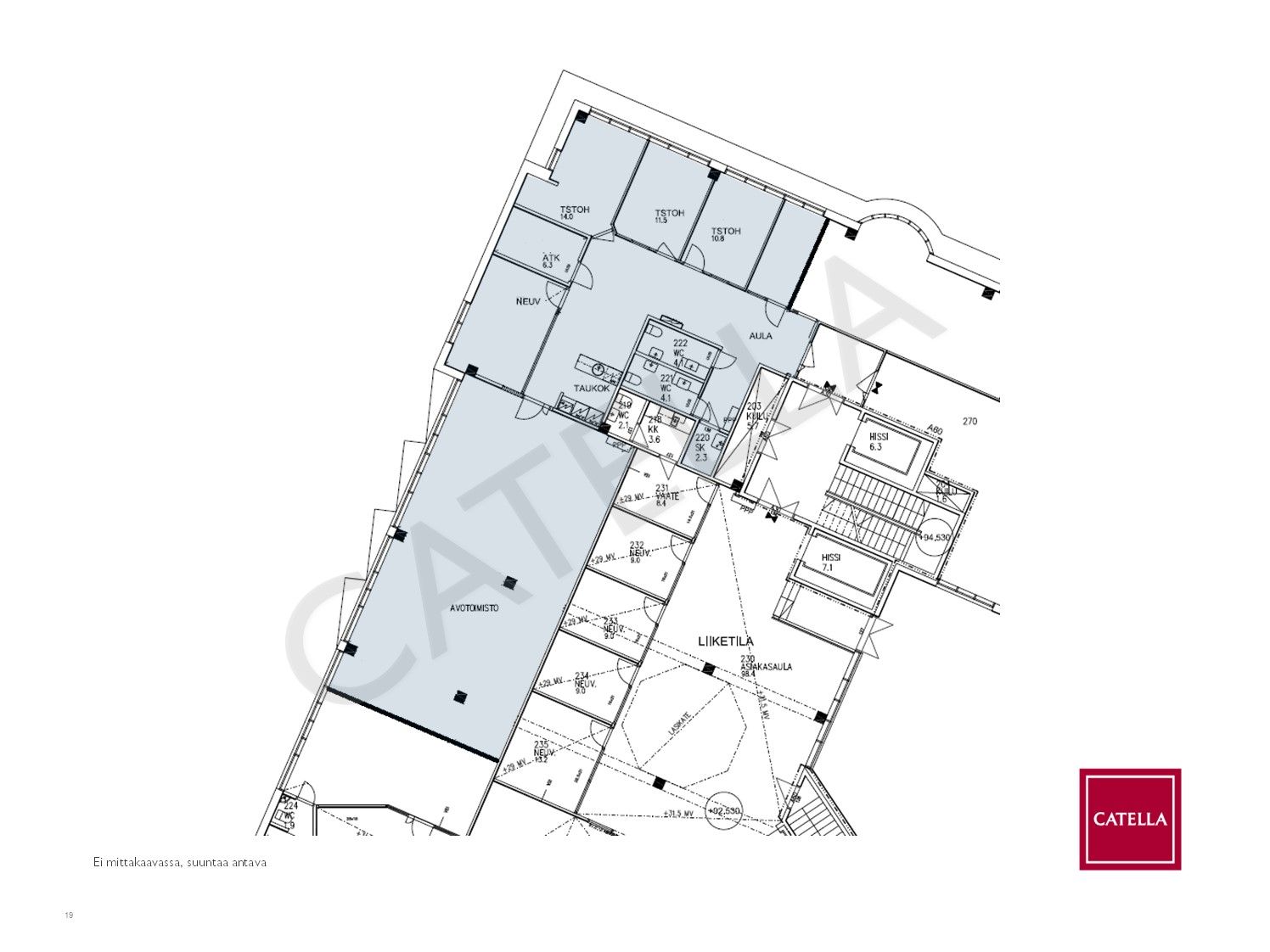
2. kerroksen valoisa toimistotila, jossa 4 toimistohuonetta, neukkari sekä avotilaa. Toimistotiloissa lattiat tekstiilipalamattoa ja aulatiloissa parkettia.
Autopaikkoja vuokrattavissa kiinteistön autohallista.
Kysy lisää ja sovi näyttö!
Sami Saraste
Myyntipäällikkö, LKV
sami.saraste@catella.com
050 3014 455
Tilanhakijalle palvelumme ovat maksuttomia.
Catella Property Oy on valtakunnallinen toimitilojen vuokraukseen ja myyntiin keskittynyt kiinteistönvälitysyritys.
Kysy paikallisilta ammattitaitoisilta välittäjiltämme myös muita välityksessämme olevia toimitilakohteita.
Välittäjiemme yhteystiedot ja lisää välitettäviä tilakohteita verkkosivuillamme: www.toimitilat.catella.fi.
Ota yhteyttä!
Vapautuu
Heti vapaa
Kerros
2
Ota yhteyttä
Catella Property Oy
Hämeenkatu 13b A, 33100 Tampere
Näytä puhelinnumero
010 5220 100
Sami Saraste
Näytä puhelinnumero
0503014455
Pyydä lisätietoa
