Vuokrataan toimistotilat - Rovaniemi
Teknotie 14-16, toimisto 4, Teknotie 14-16, 96930 Rovaniemi #10830220
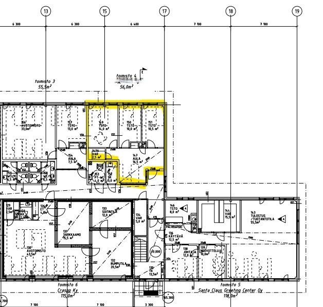
Vuokrataan monikäyttöistä toimistotilaa Rovaniemen Napapiirin tuntumasta. Alueella on vilkasta matkailutoimintaa ja siellä toimii useita matkailualan yrityksiä. Toimiston rauhallinen sijainti sopii hyvin vaikkapa suunnittelutyöhön.
Osoite
Teknotie 14-16, 96930 Rovaniemi
Tilatyyppi
Toimistotilaa
56 m2
Pysäköinti
Rakennuksen pihalta on vuokrattavissa lämpötolpallisia autopaikkoja
Vapautuu
1.6.2025
Kerros
1 / 2
Huoneiden lukumäärä
3
Ota yhteyttä
Rovaseudun Markkinakiinteistöt Oy
Puhelin: Näytä puhelinnumero 020 152 5090
Rovaseudun Markkinakiinteistöt Oy kehittää Rovaniemen kaupungin elinvoimaa tarjoamalla alueen yrityksille monipuolisen valikoiman toimi- ja tuotantotiloja. Toimitilavuokrauksen lisäksi vuokraamme myös tapahtuma-alueita. Lordin aukio ja kauppatori ovat kaupungin suosituimpia tapahtumapaikkoja.
https://www.rovaseudunmarkkinakiinteistot.fi/Pyydä lisätietoa
