











Vuokrataan tuotantotilat, varastotilat, autotalli/-hallitilat - Jyväskylä
Pajatie 7, 40700 Jyväskylä #10830215
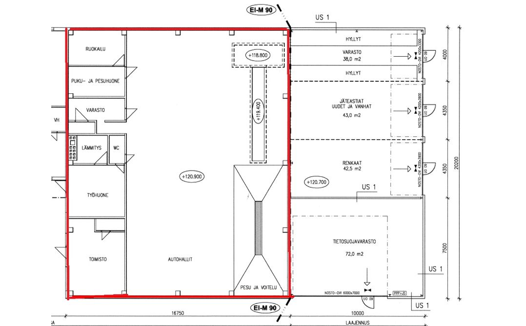
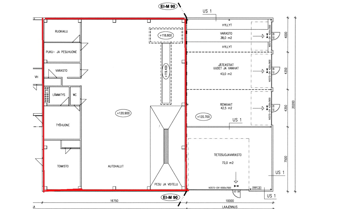
Vuokrataan n. 383m2 halli - / varastotilakokonaisuus Sairaala Novan vieressä Kukkulan alueella. Hallitilaan on 3 kpl nosto-ovia. Hallitilassa on myös n. 120m2 parvi. Lisäksi tiloissa on varastohuone, keittiö, taukotila, WC- ja suihkutilat sekä toimisto- ja neuvottelutilaa.
Kohteessa on hyvin saatavilla parkkitilaa. Kohde on heti vapaa.
Lisätiedot ja näytöt:
Henri Kumpulainen, 040 864 3631, henri.kumpulainen@aveon.fi
Katutasossa
Näkyvällä paikalla
Aveon Real Estate Oy
Kauppakatu 18 C 26, 40100 Jyväskylä
Henri Kumpulainen
Puh.
Näytä puhelinnumero
040 864 3631
henri.kumpulainen@aveon.fi
Olemme kiinteistöliiketoiminnan asiantuntija, joka toimii yrittäjämäisesti neuvonantajana kiinteistökaupoissa, toimitilavälittämisessä sekä kiinteistökehityksessä.
Asiakkaitamme ovat kotimaiset ja ulkomaiset kiinteistönomistajat, -sijoittajat sekä tilojen käyttäjät kaikkialla Suomessa.