Vuokrataan toimistotilat - Helsinki
Sörnäisten rantatie 25, Sörnäinen, 00500 Helsinki #10830173
Siisti 1345 m² toimisto Sörnäisissä, erinomaisten julkisten liikenneyhteyksien varrella.
Osoite
Sörnäisten rantatie 25, 00500 Helsinki
Tilatyyppi
Toimistotilaa
1345 m2
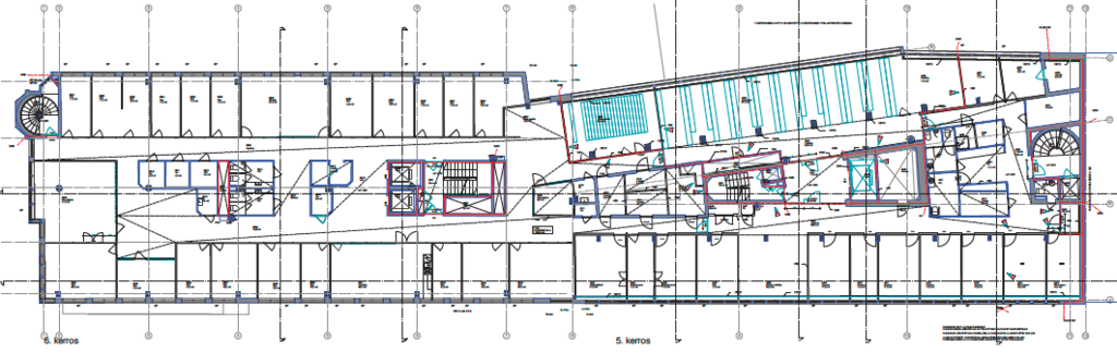
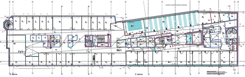
Pohjapiirros
Kiinteistö
Kuudennen kerroksen 1345 m² toimistotilassa on erikokoisia työ- ja neuvotteluhuoneita sekä omat keittiö- ja wc-tilat.
Vasemman siiven Sörnäisten rantatien puolella 320 m² + pihan puolella 335 m². Oikea siipi n. 160 m² korkea tila (varasto, galleria, arkisto) ja n 400 m² matalampaa toimistotilaa.
Toimistossa on koneellinen ilmanvaihto.
Vilkkaan Sörnäisten Rantatien varrella sijaitseva kiinteistö tarjoaa toimitiloja, jotka ovat muokattavissa tämän päivän tarpeisiin.
Kiinteistön yhteydestä löytyy runsaasti autopaikkoja niin hallista kuin rakennuksen takapihalta.
Vasemman siiven Sörnäisten rantatien puolella 320 m² + pihan puolella 335 m². Oikea siipi n. 160 m² korkea tila (varasto, galleria, arkisto) ja n 400 m² matalampaa toimistotilaa.
Toimistossa on koneellinen ilmanvaihto.
Vilkkaan Sörnäisten Rantatien varrella sijaitseva kiinteistö tarjoaa toimitiloja, jotka ovat muokattavissa tämän päivän tarpeisiin.
Kiinteistön yhteydestä löytyy runsaasti autopaikkoja niin hallista kuin rakennuksen takapihalta.
Vapautuu
Heti
Kerros
6 / 7
Energiatehokkuusluokka
Ei lain edellyttämää energiatodistusta
Hissi
Ota yhteyttä
ScanReal Oy LKV
Opus Business Park
Hitsaajankatu 24
00810 Helsinki
info@scanreal.fi
Puh:
Näytä puhelinnumero
020 730 8830
Sopivat toimitilat yhdellä otolla!
Kartoitamme toimitilatarpeesi ja etsimme yrityksellesi parhaiten sopivat vapaat toimitilat. Koska vuokranantajat maksavat palvelumme, on tämä yrityksellesi veloituksetonta.
Palvelumme on tilanhakijalle ilmainen
Pyydä lisätietoa
