Vuokrataan toimistotilat, liiketilat - Helsinki
Porkkalankatu 3, Ruoholahti, 00180 Helsinki #10830137
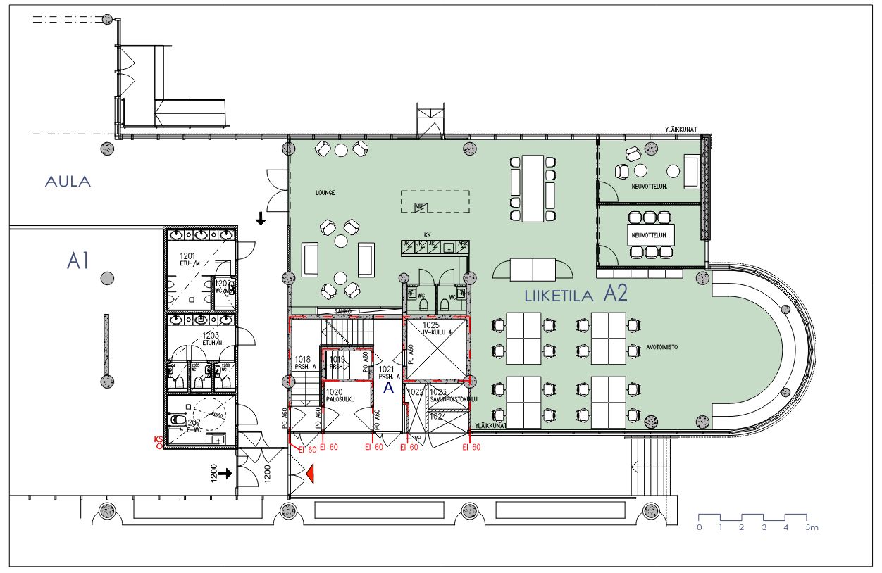
Ruoholahden näkyvimmällä paikalla, Länsiväylän risteyksessä sijaitsee Toimistotalo Roihu. Entiset Kemiran pääkonttorin tilat tullaan saneeraamaan ja modernisoimaan uusille käyttäjilleen sopiviksi. Sisään muutto onnistuu noin 6 kuukautta sopimuksen allekirjoittamisesta. 1. kerroksen tilat voidaan toteuttaa liike- tai toimistotiloina.
Modernia ja muuntojoustavaa tilaa on vuokrattavissa yhteensä kymmenessä kerroksessa. Rakennuksessa palvelee kattavat kuntoilu- ja virkistystilat sekä edustussaunat. Lähialueella runsas palveluvalikoima.
Lisätietoja 020 7290 710 ja lisää kohteita premises.fi
Kohteella ei ole lain edellyttämää energiatodistusta tai energialuokka ei tiedossa.Kerros: 1
CRE PREMISES
Puh. Näytä puhelinnumero 020 7290 710
Vantaankoskentie 14
01670 VANTAA
