Vuokrataan liiketilat - Oulu
Karhuojantie 2, Oulunsalo, 90460 Oulu #10830127
Liiketila 58m2 Kauppakeskus Kapteeni
Osoite
Karhuojantie 2, 90460 Oulu
Tilatyyppi
Liiketilaa
58 m2
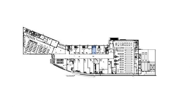
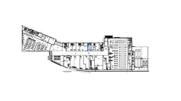
Pohjapiirros
Kiinteistö
Vuokrattavana
Vapaana Kauppakeskus Kapteenin ensimmäisessä kerroksessa sijaitseva 58 m2 liiketila. Selkeän mallinen liiketila sisältää minikeittiön ja wc:n. Kauppakeskuksessa on monipuoliset palvelut, muun muassa K-Supermarket, apteekki ja Oulun kaupungin palvelupisteitä.
Sijainti
Kauppakeskus Kapteeni sijaitsee Oulunsalossa vilkkaasti liikennöidyn Lentokentäntien varrella. Matkaa lentokentälle 1,6 kilometriä ja Oulun keskustaan noin 13 kilometriä.
Vapaana Kauppakeskus Kapteenin ensimmäisessä kerroksessa sijaitseva 58 m2 liiketila. Selkeän mallinen liiketila sisältää minikeittiön ja wc:n. Kauppakeskuksessa on monipuoliset palvelut, muun muassa K-Supermarket, apteekki ja Oulun kaupungin palvelupisteitä.
Sijainti
Kauppakeskus Kapteeni sijaitsee Oulunsalossa vilkkaasti liikennöidyn Lentokentäntien varrella. Matkaa lentokentälle 1,6 kilometriä ja Oulun keskustaan noin 13 kilometriä.
Vapautuu
Kysy
Kerros
1
Ota yhteyttä
Logistila Oy
Kiilakiventie 1, 90250 OULU
Sami Karppinen
Näytä puhelinnumero
+358401994722
Pyydä lisätietoa
