Vuokrataan liiketilat, työtilat, muut tilat - Jyväskylä
Pellonreuna 1, 40520 Jyväskylä #10830097
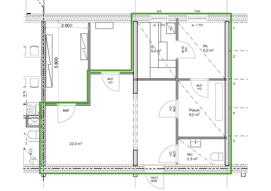
Vuokrataan Kekkolasta kerrostalon pohjakerroksesta n. 41 m2 saunatila, joka soveltuu esimerkiksi pieneksi työtilaksi tai liiketilaksi vaikkapa hierojalle tai koiratrimmaukseen. Tilan kokoonpanoon kuuluu n. 20m2-kokoinen avotila, pukuhuone- ja suihkutila, sauna sekä WC. Tilaan on oma käyntiovi pohjakerroksessa sisäpihan puolella hieman suojaisalta ulkokäytävältä. Tila on heti saatavilla.
Parkkipaikat kohteessa neuvoteltavissa vuokranantajan kanssa.
Lisätiedot ja näytöt:
Topi Veijonen, 050 3000 992, topi.veijonen@aveon.fi
Katutasossa
Aveon Real Estate Oy
Kauppakatu 18 C 26, 40100 Jyväskylä
Topi Veijonen
Puh.
Näytä puhelinnumero
050 3000 992
topi.veijonen@aveon.fi
Olemme kiinteistöliiketoiminnan asiantuntija, joka toimii yrittäjämäisesti neuvonantajana kiinteistökaupoissa, toimitilavälittämisessä sekä kiinteistökehityksessä.
Asiakkaitamme ovat kotimaiset ja ulkomaiset kiinteistönomistajat, -sijoittajat sekä tilojen käyttäjät kaikkialla Suomessa.
