Vuokrataan toimistotilat - Helsinki
Mikonkatu 8, Keskusta, 00100 Helsinki #10830073
Monipuolinen 380 m² toimistotila ydinkeskustassa, Aikatalossa
Osoite
Mikonkatu 8, 00100 Helsinki
Tilatyyppi
Toimistotilaa
380 m2
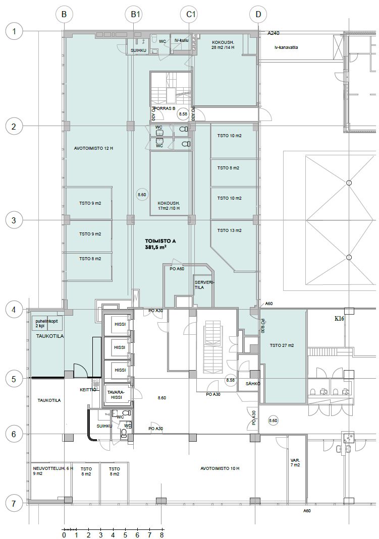
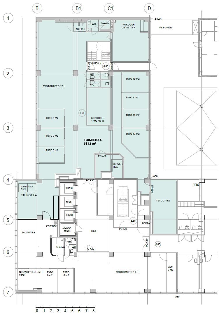
Pohjapiirros
Kiinteistö
Tämä joustava 380 m² tila koostuu erikokoisista huoneista, kuten erillisistä toimistotiloista ja pienestä avotilasta, joten se on ihanteellinen muokattavaksi juuri sinun yrityksesi tarpeisiin. Tilassa on käytännöllinen taukokeittiö, kolme modernia WC-tilaa sekä suihku, ja viihtyisyyden takaa tehokas jäähdytysjärjestelmä.
Aikatalo on suunniteltu energiatehokkuutta ja kestävyyttä silmällä pitäen, tarjoten modernin ja ympäristöystävällisen työympäristön. Kehittynyt jäähdytysteknologia ja harkitut ratkaisut minimoivat energiankulutuksen samalla, kun tilan mukavuus säilyy ensiluokkaisena.
Kaikki keskustan palvelut ovat vain kävelymatkan päässä, mikä tekee arjesta sujuvaa ja miellyttävää. Taukokeittiö, suihku ja useat WC-tilat tuovat käytännöllistä mukavuutta, kun taas erillisten huoneiden ja avotilan yhdistelmä mahdollistaa sekä keskittymisen että tiimityön. Tämä hyvin varusteltu toimisto on suunniteltu tukemaan kasvavan yrityksen tarpeita, luoden viihtyisän ja toimivan työympäristön, joka inspiroi.
Aikatalon sijainti ydinkeskustassa takaa erinomaiset liikenneyhteydet ja saavutettavuuden. Keskeinen sijainti helpottaa tiimisi päivittäistä kulkemista, ja lähellä olevat palvelut tekevät tästä kohteesta kaiken toiminnan keskipisteen. Olipa kulkutapasi auto tai julkinen liikenne, tämä sijainti on vaivattomasti saavutettavissa, asettaen yrityksesi toiminnan ja mahdollisuuksien ytimeen.
Aikatalo on suunniteltu energiatehokkuutta ja kestävyyttä silmällä pitäen, tarjoten modernin ja ympäristöystävällisen työympäristön. Kehittynyt jäähdytysteknologia ja harkitut ratkaisut minimoivat energiankulutuksen samalla, kun tilan mukavuus säilyy ensiluokkaisena.
Kaikki keskustan palvelut ovat vain kävelymatkan päässä, mikä tekee arjesta sujuvaa ja miellyttävää. Taukokeittiö, suihku ja useat WC-tilat tuovat käytännöllistä mukavuutta, kun taas erillisten huoneiden ja avotilan yhdistelmä mahdollistaa sekä keskittymisen että tiimityön. Tämä hyvin varusteltu toimisto on suunniteltu tukemaan kasvavan yrityksen tarpeita, luoden viihtyisän ja toimivan työympäristön, joka inspiroi.
Aikatalon sijainti ydinkeskustassa takaa erinomaiset liikenneyhteydet ja saavutettavuuden. Keskeinen sijainti helpottaa tiimisi päivittäistä kulkemista, ja lähellä olevat palvelut tekevät tästä kohteesta kaiken toiminnan keskipisteen. Olipa kulkutapasi auto tai julkinen liikenne, tämä sijainti on vaivattomasti saavutettavissa, asettaen yrityksesi toiminnan ja mahdollisuuksien ytimeen.
Pysäköinti
Pysäköintipaikkoja Aikatalon ja WTC:n parkkihalleissa.
Vapautuu
Heti
Rakennusvuosi
1968
Kerros
3 / 10
Energiatehokkuusluokka
Ei lain edellyttämää energiatodistusta
Näkyvällä paikalla
Ota yhteyttä
ScanReal Oy LKV
Opus Business Park
Hitsaajankatu 24
00810 Helsinki
info@scanreal.fi
Puh:
Näytä puhelinnumero
020 730 8830
Sopivat toimitilat yhdellä otolla!
Kartoitamme toimitilatarpeesi ja etsimme yrityksellesi parhaiten sopivat vapaat toimitilat. Koska vuokranantajat maksavat palvelumme, on tämä yrityksellesi veloituksetonta.
Palvelumme on tilanhakijalle ilmainen
Pyydä lisätietoa
