Vuokrataan toimistotilat - Helsinki
Salomonkatu 17, Kamppi, 00100 Helsinki #10830068
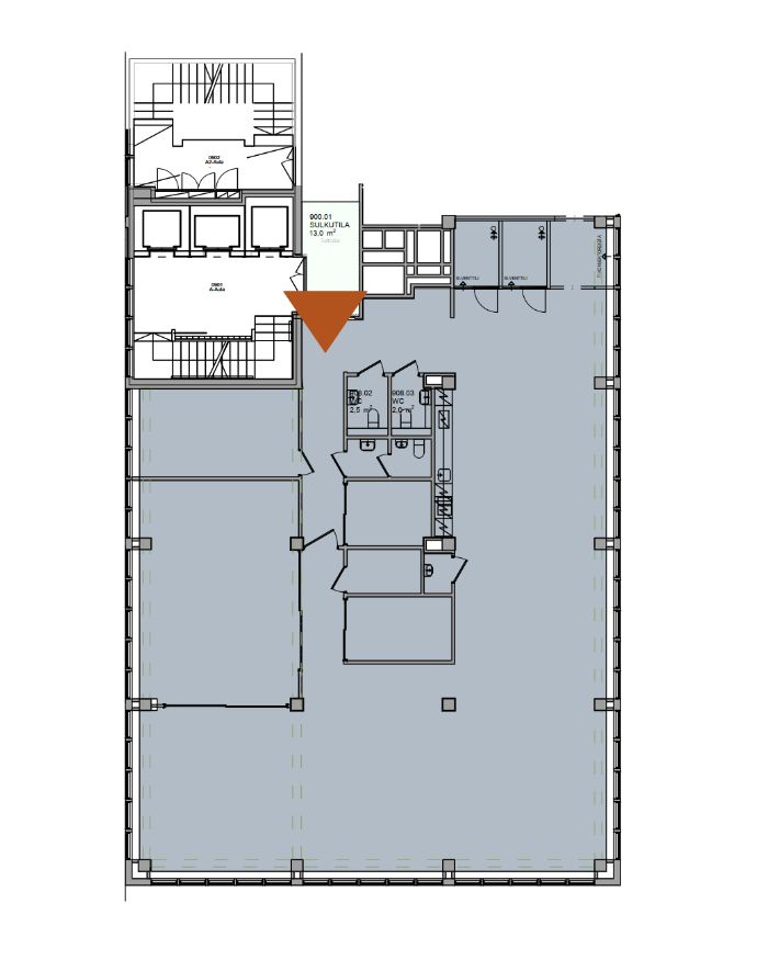
Vuokrattavana 9. kerroksen valoisaa, upeaa ja siistiä toimistotilaa.
Osoite
Salomonkatu 17, 00100 Helsinki
Tilatyyppi
Toimistotilaa
308 m2
Tilajako
Jaettavissa
Laajennettavissa
Kiinteistö
Vuokrattavana 9. kerroksen valoisaa, upeaa ja siistiä avotoimistotilaa, jossa avotilan lisäksi neuvottelutila sekä wc-tilat.
Sijainti
Kamppi, Helsinki
Pysäköinti
Autohallit ja alueen pysäköintilaitokset.
Palvelut
Kampin keskuksen palvelut.
Kulkuyhteydet
-Metroasema 100 m
-Raitiovaunupysäkki 200 m
-Bussipysäkki alle 100 m
-Juna-asema 900 m
-Raitiovaunupysäkki 200 m
-Bussipysäkki alle 100 m
-Juna-asema 900 m
Vapautuu
Heti
Kerros
9
Energiatehokkuusluokka
Ei lain edellyttämää energiatodistusta
Näkyvällä paikalla
Jaettavissa
Hissi
Ota yhteyttä
REALIUM OY LKV
Tammasaarenkatu 1, 00180 Helsinki
Vaihde:
Näytä puhelinnumero
010 326 346
Tuomo Mäkelä
tuomo.makela@realium.fi
p.
Näytä puhelinnumero
044 050 1158
Joel Keto
joel.keto@realium.fi
p.
Näytä puhelinnumero
045 317 0330
KAIKKI TILAVAIHTOEHDOT KERRALLA!
SOITA - MEILAA JA TILAA NÄYTTÖ!
Ilmainen palvelu tilanhakijoille.
Kartoitamme parhaat tilavaihtoehdot.
Kaikki kohteet eivät ole netissä.
Pyydä lisätietoa
