Vuokrataan toimistotilat - Helsinki
Työpajankatu 9 D/Panimokatu 4, Kalasatama, 00580 Helsinki #10830063
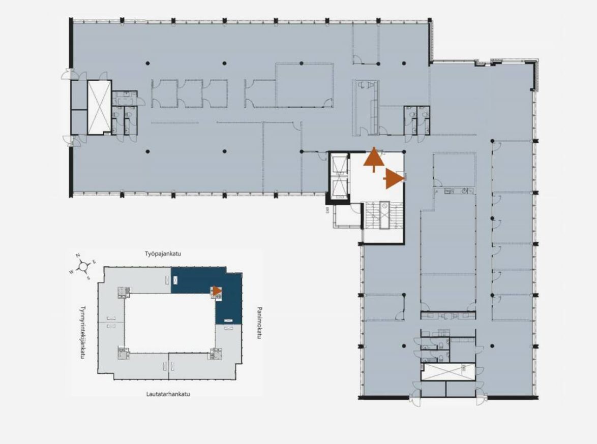
Vuokrattavana avara, tehokas ja valoisa toimistotila.
Osoite
Työpajankatu 9 D/Panimokatu 4, 00580 Helsinki
Tilatyyppi
Toimistotilaa
900 m2
Kiinteistö
Vuokrattavana avara, tehokas toimistotila. Tilan ikkunat avautuvat neljään ilmansuuntaan.
Sijainti
Kalasatama, Helsinki
Pysäköinti
Kiinteistössä pysäköintihalli.
Palvelut
-Vuokrattavia neuvottelutiloja
-Lounasravintola
-Kuntosali
-Lounasravintola
-Kuntosali
Kulkuyhteydet
-Metro
-Raitiovaunu
-Bussi
-Oma auto
-Raitiovaunu
-Bussi
-Oma auto
Vapautuu
Heti
Kerros
4
Energiatehokkuusluokka
Ei lain edellyttämää energiatodistusta
Näkyvällä paikalla
Hissi
Ota yhteyttä
REALIUM OY LKV
Tammasaarenkatu 1, 00180 Helsinki
Vaihde:
Näytä puhelinnumero
010 326 346
Tuomo Mäkelä
tuomo.makela@realium.fi
p.
Näytä puhelinnumero
044 050 1158
Joel Keto
joel.keto@realium.fi
p.
Näytä puhelinnumero
045 317 0330
KAIKKI TILAVAIHTOEHDOT KERRALLA!
SOITA - MEILAA JA TILAA NÄYTTÖ!
Ilmainen palvelu tilanhakijoille.
Kartoitamme parhaat tilavaihtoehdot.
Kaikki kohteet eivät ole netissä.
Pyydä lisätietoa
