Vuokrataan toimistotilat - Helsinki
Ilmalantori 1, Ilmala, 00240 Helsinki #10830021
Modernia monitilatoimistoa Helsingin Ilmalassa.
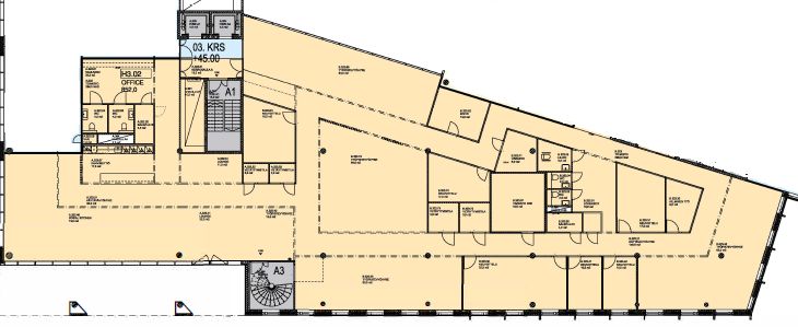
Tämä 852 m² toimisto sijaitsee kiinteistön 3. kerroksessa. Toimistossa on huoneita, avotilaa sekä omat keittiö- ja wc-tilat.
Ilmalantori 1 eli Ilmalan Asema on vuonna 2017 valmistunut moderni toimistokiinteistö, joka sijaitsee erinomaisella paikalla Ilmalan juna-aseman vieressä. Kiinteistö on rakennettu kestävän kehityksen periaatteiden mukaisesti energiatehokkaaksi ja ympäristöystävälliseksi. Rakennuksesta löytyy mm. aurinkopaneelit, liikkuvan lämmön talteenotto ja viherkatto. Kiinteistölle on myönnetty rakennusaikainen LEED Platinum - ympäristösertifikaatti.
Ilmalan Asema koostuu yhteensä 9 kerroksesta. Ylimmässä kerroksessa on vuokrattavissa oleva BigRoom-edustustila. Sisääntulokerroksessa on aulapalvelu, ravintola ja kahvila. Kiinteistössä on lisäksi yhteiset suihku- ja pukeutumistilat, pyörien säilytys sekä lämmin pysäköintihalli, jossa on sähköautojen latausmahdollisuus.
Kysy lisää numerosta 044 723 4700 tai info@bref.fi. Palvelumme on tilanhakijoille ilmainen.
Hissi
Bureau Real Estate Finland Oy
Lars Sonckin kaari 16, 02600 Espoo
Näytä puhelinnumero
0447234700
Bureau Real Estate Finland Oy
https://www.bref.fi