Vuokrataan varastotilat - Helsinki
Salomonkatu 17, Kamppi, 00100 Helsinki #10830003
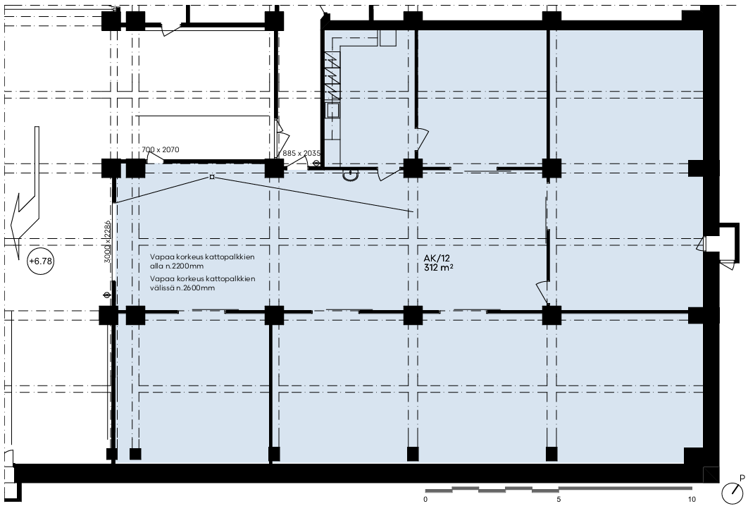
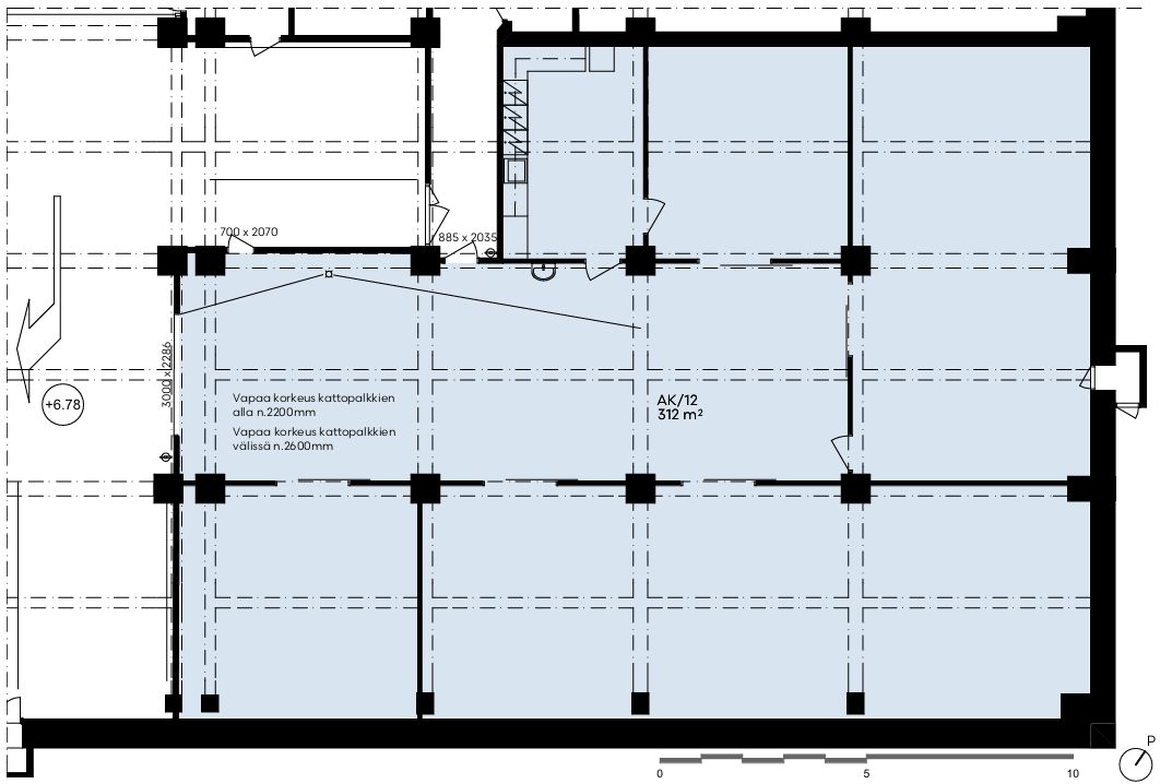
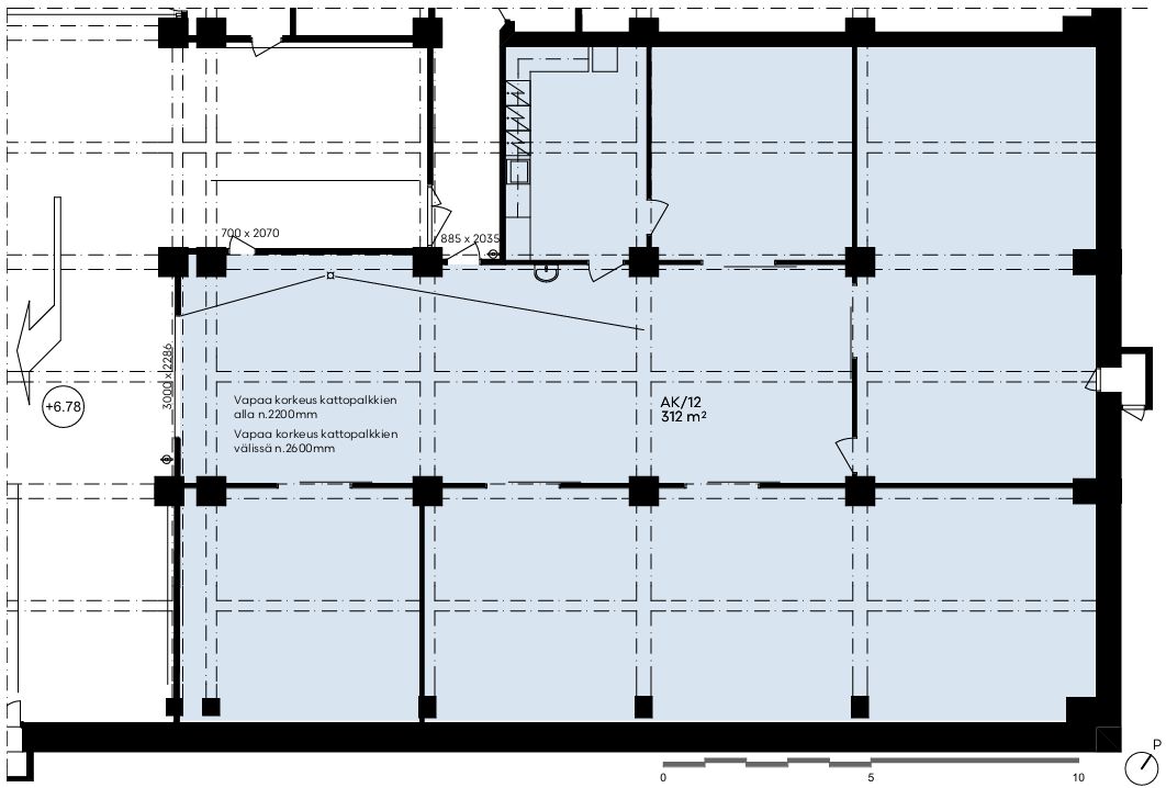
Autotalo - Pienvarasto 312 m²
Osoite
Salomonkatu 17, 00100 Helsinki
Tilatyyppi
Varastotilaa
312 m2
Pohjapiirros
Kiinteistö
Vuokrattavana monikäyttöinen pienvarastotila erinomaisella sijainnilla
Tarjolla vuokrattavaksi pienvarastotila toimistotalosta keskeltä Kamppia. Tämä tila tarjoaa kätevän ja keskeisen sijainnin yrityksesi varastointitarpeisiin.
Tilat ja ominaisuudet:
Sisään ajettava, nosto-ovi autohallista(ovikorkeus n. 2150 mm)
Vapaa korkeus kattopalkkien alla: noin 2200 mm
Vapaa korkeus kattopalkkien välissä: noin 2600 mm
Tila jaettu erillisiin lukittaviin osioihin
Keittiö
Erillinen vesipiste
Tämä varastotila sopii erinomaisesti monenlaiseen käyttöön ja tarjoaa helpon pääsyn kaupungin palveluihin ja kulkuyhteyksiin. Ota yhteyttä ja tule tutustumaan tähän tilaan!
Autotalo – Kampin ikoninen maamerkki
Autotalo tarjoaa modernia ja hyväkuntoista toimitilaa sekä ravintolaliiketilaa Helsingin sydämessä. Vuonna 2015 valmistunut perusparannushanke takaa tilojen nykyaikaisuuden ja toimivuuden.
Sijainti
Autotalo on valmistunut vuonna 1958 ja se on osa Kampin Autotalokorttelia. Rakennuksessa on 12 maanpäällistä ja 3 maanalaista kerrosta, jotka tarjoavat monipuoliset tilaratkaisut eri tarpeisiin. Autotalokortteli sijaitsee näkyvällä paikalla Kampin kauppakeskuksen vieressä, ja kohteeseen on erinomaiset julkiset kulkuyhteydet metrolla, raitiovaunulla ja busseilla. Yksityisautoille on maanalaista pysäköintitilaa korttelin omassa autohallissa.
Palvelut
Peruskorjaukset ja parannushankkeet ovat avartaneet tiloja ja tehneet niistä käyttäjilleen avoimempia. Autotalon aulatila on uudistettu näyttäväksi ja viihtyisäksi. Kiinteistö on esteetön ja sopii liikuntarajoitteisille. Upeat edustustilat saunoineen erilaisten tilaisuuksien järjestämiseen sijaitsevat toisen toimistotornin ylimmässä kerroksessa. Monipuolinen ravintolamaailma ja K-kauppa löytyvät katutasosta. Lisäksi kiinteistössä on pyöräparkki suihkuineen, auton pesupalvelut ja sähköautojen latauspisteitä parkkihallissa, mikä tekee työmatkapyöräilystä ja autoilusta entistä mukavampaa.
Ympäristöystävällisyys
Kiinteistön Breeam In-Use -ympäristösertifikaatti tasolla Very Good korostaa kiinteistön ympäristöystävällisyyttä ja korkeaa laatua.
Ota yhteyttä
Kiinnostuitko? Ota yhteyttä ja tule tutustumaan tiloihin!
Toimitilavälityspalvelumme on toimitilaa etsivälle täysin maksuton.
Tarjolla vuokrattavaksi pienvarastotila toimistotalosta keskeltä Kamppia. Tämä tila tarjoaa kätevän ja keskeisen sijainnin yrityksesi varastointitarpeisiin.
Tilat ja ominaisuudet:
Sisään ajettava, nosto-ovi autohallista(ovikorkeus n. 2150 mm)
Vapaa korkeus kattopalkkien alla: noin 2200 mm
Vapaa korkeus kattopalkkien välissä: noin 2600 mm
Tila jaettu erillisiin lukittaviin osioihin
Keittiö
Erillinen vesipiste
Tämä varastotila sopii erinomaisesti monenlaiseen käyttöön ja tarjoaa helpon pääsyn kaupungin palveluihin ja kulkuyhteyksiin. Ota yhteyttä ja tule tutustumaan tähän tilaan!
Autotalo – Kampin ikoninen maamerkki
Autotalo tarjoaa modernia ja hyväkuntoista toimitilaa sekä ravintolaliiketilaa Helsingin sydämessä. Vuonna 2015 valmistunut perusparannushanke takaa tilojen nykyaikaisuuden ja toimivuuden.
Sijainti
Autotalo on valmistunut vuonna 1958 ja se on osa Kampin Autotalokorttelia. Rakennuksessa on 12 maanpäällistä ja 3 maanalaista kerrosta, jotka tarjoavat monipuoliset tilaratkaisut eri tarpeisiin. Autotalokortteli sijaitsee näkyvällä paikalla Kampin kauppakeskuksen vieressä, ja kohteeseen on erinomaiset julkiset kulkuyhteydet metrolla, raitiovaunulla ja busseilla. Yksityisautoille on maanalaista pysäköintitilaa korttelin omassa autohallissa.
Palvelut
Peruskorjaukset ja parannushankkeet ovat avartaneet tiloja ja tehneet niistä käyttäjilleen avoimempia. Autotalon aulatila on uudistettu näyttäväksi ja viihtyisäksi. Kiinteistö on esteetön ja sopii liikuntarajoitteisille. Upeat edustustilat saunoineen erilaisten tilaisuuksien järjestämiseen sijaitsevat toisen toimistotornin ylimmässä kerroksessa. Monipuolinen ravintolamaailma ja K-kauppa löytyvät katutasosta. Lisäksi kiinteistössä on pyöräparkki suihkuineen, auton pesupalvelut ja sähköautojen latauspisteitä parkkihallissa, mikä tekee työmatkapyöräilystä ja autoilusta entistä mukavampaa.
Ympäristöystävällisyys
Kiinteistön Breeam In-Use -ympäristösertifikaatti tasolla Very Good korostaa kiinteistön ympäristöystävällisyyttä ja korkeaa laatua.
Ota yhteyttä
Kiinnostuitko? Ota yhteyttä ja tule tutustumaan tiloihin!
Toimitilavälityspalvelumme on toimitilaa etsivälle täysin maksuton.
Vapautuu
Kysy
Kerros
AK
Ota yhteyttä
Logistila Oy
Kylätie 11-13, 00320 HELSINKI
Karoliina Turppo
Näytä puhelinnumero
050 345 3258
Pyydä lisätietoa
