Vuokrataan toimistotilat - Helsinki
Salomonkatu 17, Kamppi, 00100 Helsinki #10830001
Autotalo - Toimisto 569,5 m²
Osoite
Salomonkatu 17, 00100 Helsinki
Tilatyyppi
Toimistotilaa
569 m2
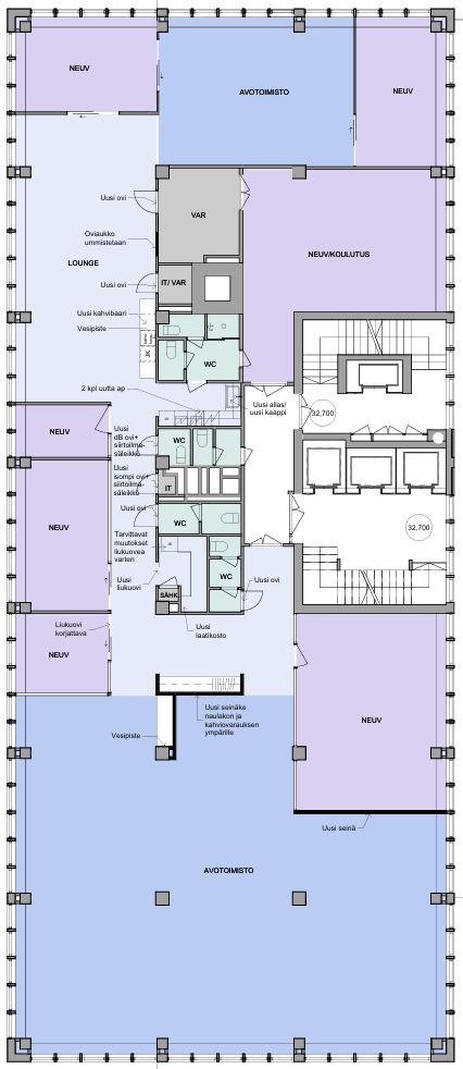
Pohjapiirros
Kiinteistö
Monikäyttöinen toimistotila erinomaisella sijainnilla
Vuokrattavana moderni ja monikäyttöinen toimistotila, joka tarjoaa erinomaiset puitteet yrityksesi tarpeisiin. Tämä 569,4 m² kokoinen tila sijaitsee Autotalon B-tornin 6. kerroksessa ja tarjoaa monipuoliset tilaratkaisut.
Tilat ja ominaisuudet:
Lounge ja avotilaa: Joustava ja avara tila, joka mahdollistaa monipuoliset työskentelyratkaisut ja mukavat taukopaikat
Erikokoisia työ- ja neuvotteluhuoneita: Ikkunaseinustoilla sijaitsevat huoneet tarjoavat rauhallisen ympäristön keskittymistä vaativiin tehtäviin sekä upeat näkymät neljään ilmansuuntaan
Keittiö: Käytännöllinen keittiö, jossa voit nauttia tauoista
2 sisäänkäyntiä: Mahdollisuus vieraiden vastaanottoon ilman, että heidän tarvitsee kulkea toimiston kautta
Tämä toimistotila sijaitsee keskeisellä paikalla, josta on erinomaiset kulkuyhteydet ja kaikki palvelut lähellä. Tule ja tutustu tähän upeaan tilaan, joka voi olla juuri se, mitä yrityksesi tarvitsee!
Autotalo – Kampin ikoninen maamerkki
Autotalo tarjoaa modernia ja hyväkuntoista toimitilaa sekä ravintolaliiketilaa Helsingin sydämessä. Vuonna 2015 valmistunut perusparannushanke takaa tilojen nykyaikaisuuden ja toimivuuden.
Sijainti
Autotalo on valmistunut vuonna 1958 ja se on osa Kampin Autotalokorttelia. Rakennuksessa on 12 maanpäällistä ja 3 maanalaista kerrosta, jotka tarjoavat monipuoliset tilaratkaisut eri tarpeisiin. Autotalokortteli sijaitsee näkyvällä paikalla Kampin kauppakeskuksen vieressä, ja kohteeseen on erinomaiset julkiset kulkuyhteydet metrolla, raitiovaunulla ja busseilla. Yksityisautoille on maanalaista pysäköintitilaa korttelin omassa autohallissa.
Palvelut
Peruskorjaukset ja parannushankkeet ovat avartaneet tiloja ja tehneet niistä käyttäjilleen avoimempia. Autotalon aulatila on uudistettu näyttäväksi ja viihtyisäksi. Kiinteistö on esteetön ja sopii liikuntarajoitteisille. Upeat edustustilat saunoineen erilaisten tilaisuuksien järjestämiseen sijaitsevat toisen toimistotornin ylimmässä kerroksessa. Monipuolinen ravintolamaailma ja K-kauppa löytyvät katutasosta. Lisäksi kiinteistössä on pyöräparkki suihkuineen, auton pesupalvelut ja sähköautojen latauspisteitä parkkihallissa, mikä tekee työmatkapyöräilystä ja autoilusta entistä mukavampaa.
Ympäristöystävällisyys
Kiinteistön Breeam In-Use -ympäristösertifikaatti tasolla Very Good korostaa kiinteistön ympäristöystävällisyyttä ja korkeaa laatua.
Ota yhteyttä
Kiinnostuitko? Ota yhteyttä ja tule tutustumaan tiloihin!
Toimitilavälityspalvelumme on toimitilaa etsivälle täysin maksuton.
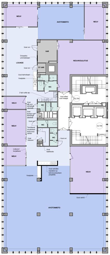
Vuokrattavana moderni ja monikäyttöinen toimistotila, joka tarjoaa erinomaiset puitteet yrityksesi tarpeisiin. Tämä 569,4 m² kokoinen tila sijaitsee Autotalon B-tornin 6. kerroksessa ja tarjoaa monipuoliset tilaratkaisut.
Tilat ja ominaisuudet:
Lounge ja avotilaa: Joustava ja avara tila, joka mahdollistaa monipuoliset työskentelyratkaisut ja mukavat taukopaikat
Erikokoisia työ- ja neuvotteluhuoneita: Ikkunaseinustoilla sijaitsevat huoneet tarjoavat rauhallisen ympäristön keskittymistä vaativiin tehtäviin sekä upeat näkymät neljään ilmansuuntaan
Keittiö: Käytännöllinen keittiö, jossa voit nauttia tauoista
2 sisäänkäyntiä: Mahdollisuus vieraiden vastaanottoon ilman, että heidän tarvitsee kulkea toimiston kautta
Tämä toimistotila sijaitsee keskeisellä paikalla, josta on erinomaiset kulkuyhteydet ja kaikki palvelut lähellä. Tule ja tutustu tähän upeaan tilaan, joka voi olla juuri se, mitä yrityksesi tarvitsee!
Autotalo – Kampin ikoninen maamerkki
Autotalo tarjoaa modernia ja hyväkuntoista toimitilaa sekä ravintolaliiketilaa Helsingin sydämessä. Vuonna 2015 valmistunut perusparannushanke takaa tilojen nykyaikaisuuden ja toimivuuden.
Sijainti
Autotalo on valmistunut vuonna 1958 ja se on osa Kampin Autotalokorttelia. Rakennuksessa on 12 maanpäällistä ja 3 maanalaista kerrosta, jotka tarjoavat monipuoliset tilaratkaisut eri tarpeisiin. Autotalokortteli sijaitsee näkyvällä paikalla Kampin kauppakeskuksen vieressä, ja kohteeseen on erinomaiset julkiset kulkuyhteydet metrolla, raitiovaunulla ja busseilla. Yksityisautoille on maanalaista pysäköintitilaa korttelin omassa autohallissa.
Palvelut
Peruskorjaukset ja parannushankkeet ovat avartaneet tiloja ja tehneet niistä käyttäjilleen avoimempia. Autotalon aulatila on uudistettu näyttäväksi ja viihtyisäksi. Kiinteistö on esteetön ja sopii liikuntarajoitteisille. Upeat edustustilat saunoineen erilaisten tilaisuuksien järjestämiseen sijaitsevat toisen toimistotornin ylimmässä kerroksessa. Monipuolinen ravintolamaailma ja K-kauppa löytyvät katutasosta. Lisäksi kiinteistössä on pyöräparkki suihkuineen, auton pesupalvelut ja sähköautojen latauspisteitä parkkihallissa, mikä tekee työmatkapyöräilystä ja autoilusta entistä mukavampaa.
Ympäristöystävällisyys
Kiinteistön Breeam In-Use -ympäristösertifikaatti tasolla Very Good korostaa kiinteistön ympäristöystävällisyyttä ja korkeaa laatua.
Ota yhteyttä
Kiinnostuitko? Ota yhteyttä ja tule tutustumaan tiloihin!
Toimitilavälityspalvelumme on toimitilaa etsivälle täysin maksuton.
Vapautuu
Kysy
Kerros
6
Ota yhteyttä
Logistila Oy
Kylätie 11-13, 00320 HELSINKI
Karoliina Turppo
Näytä puhelinnumero
050 345 3258
Pyydä lisätietoa
