Vuokrataan toimistotilat - Espoo
Säterinkatu 6, Leppävaara, 02600 Espoo #10829972
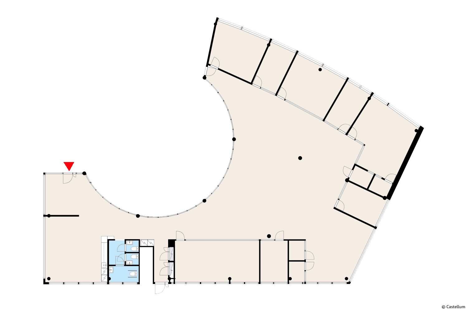
Vuokrataan ylimmän kerroksen korkea toimistotila edustavasta Säteri Business Parkista. Tämä toimitila viimeistellään tulevan käyttäjän toiveiden mukaan. Asiakas voi vaikuttaa mm. lattian ja keittiön ilmeeseen ja materiaaleihin.
Säteri Business Park sijaitsee Raide-Jokerin varrella, vain kivenheiton päässä Sellosta ja Leppävaaran juna-asemasta. Tervetuloa tutustumaan tähän toimitilaan ja kiinteistöön paikan päälle!
Osoite
Säterinkatu 6, 02600 Espoo
Tilatyyppi
Toimistotilaa
444 m2
Kiinteistö
Säteri Business Park - Säteri
Pysäköinti
Pysäköintipaikkoja vuokrattavissa kiinteistön välittömästä yhteydestä sijaitsevista pysäköintihalleista. Talon sisäänkäynnin edessä on viraspysäköintiin soveltuvia kadunvarsipaikkoja.
Palvelut
Lounasravintola, catering, vuokrattavia neuvottelutiloja, kuntosali, aulapalvelu, sauna
Muuta
Tilan ominaisuudet: tilassa on ilmastointi, avo-/kombitoimisto
Vapautuu
Vapautumassa oleva
Kerros
6.
Energiatehokkuusluokka
C
Ota yhteyttä
Castellum
Verkkosaarenkatu 5
Näytä puhelinnumero
040 027 3614
Dinah Sjöholm
Näytä puhelinnumero
040 017 4984
Pyydä lisätietoa
