Vuokrataan toimistotilat - Helsinki
Hämeentie 15, Sörnäinen, 00500 Helsinki #10829966
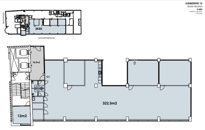
Vuokrattavana 5.kerroksen valoisa toimistotila , tilassa ilmastointi. Saavutettavuus on erinomainen niin metrolla, bussilla kuin raitiovaunullakin. Alueella useita lounaspaikkoja. Kiinteistössä myös kuntosali. Tila on heti vapaa !
Osoite
Hämeentie 15, 00500 Helsinki
Tilatyyppi
Toimistotilaa
323 m2
Vapautuu
Heti
Ota yhteyttä
Pyydä lisätietoa
