Vuokrataan toimistotilat - Helsinki
Malmin kauppatie 8, Malmi, 00700 Helsinki #10829963
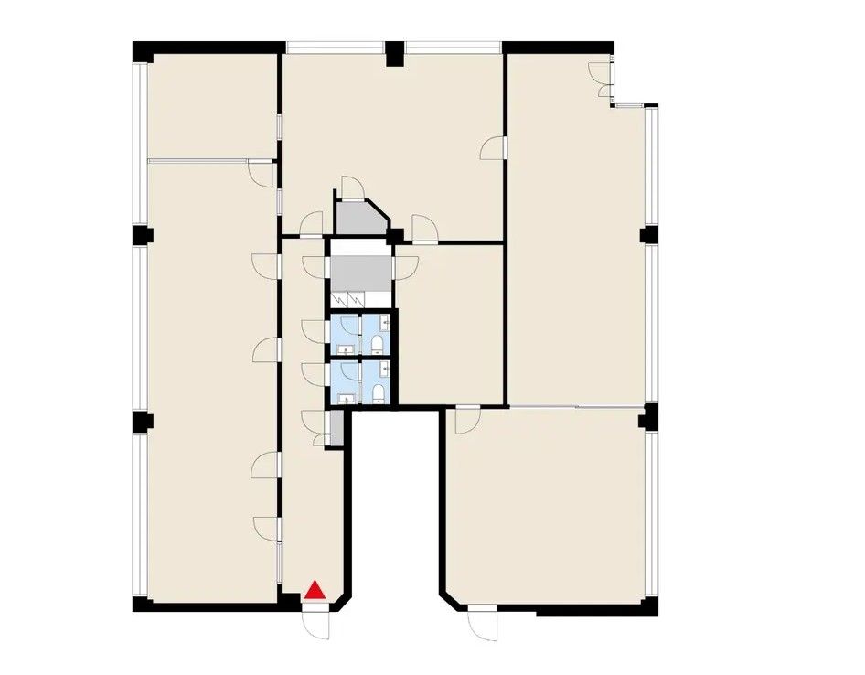
Vuokrattavana valoisa ja toimiva ensimmäisen kerroksen toimistotila Malmilta. Tila on esteetön, ja tarvittaessa on mahdollista rakentaa esteettömät WC-tilat. Malmille on erinomaiset kulkuyhteydet, olitpa liikkeellä julkisilla liikennevälineillä tai omalla autolla. Malmin kattavat palvelut sijaitsevat lähietäisyydellä, ja alueella liikkuminen on vaivatonta. Vuokralaisten käytössä on veloituksetta kiinteistön kuntosali, joka tuo mukavuutta ja joustavuutta työpäivän oheen.
Ota yhteyttä ja tule tutustumaan!
www.blanctoimitilat.fi
Joonas Nuutinen, toimitila-asiantuntija
+358 40 754 5408
joonas.nuutinen@blanckiinteisto.com
HUOM! Tilan hakijalle palvelumme on maksuton!
