Vuokrataan liiketilat - Helsinki
Annankatu 34, Kamppi, 00100 Helsinki #10829961
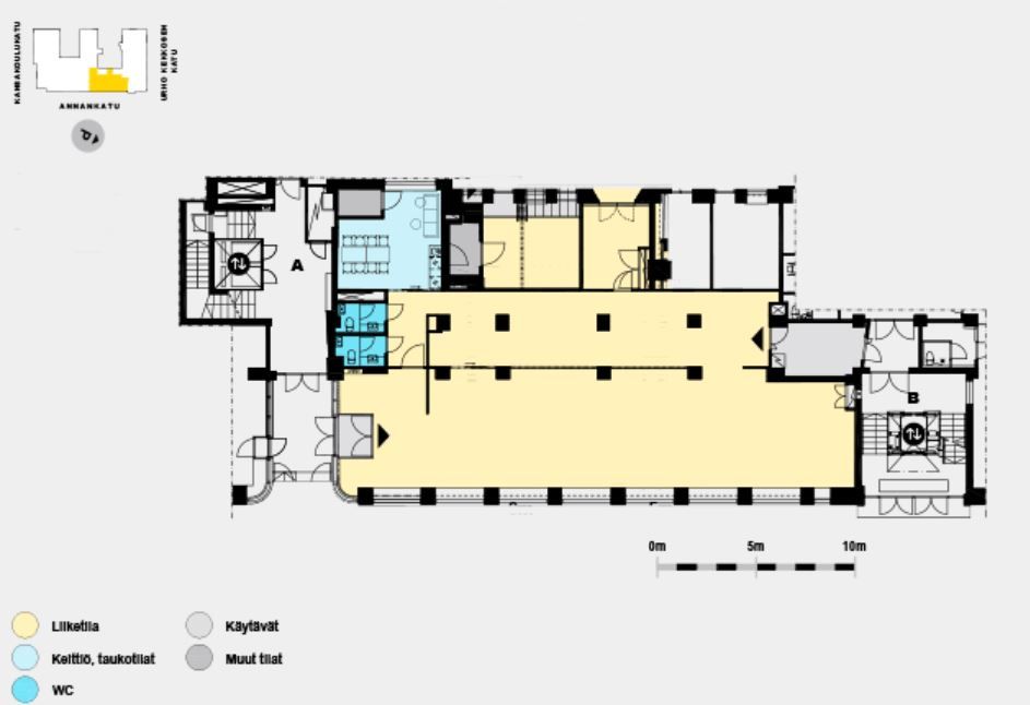
Vuokrataan heti vapaa liiketila, näkyvältä ja vilkkaalta paikalta Kampista. Tilassa avaraa liiketilaa, sekä tauko ja toimistotilaa. Sisäänkäynti Annankadulta. Hyvä saavutettavuus julkisilla liikennevälineillä.
Kysy lisätietoja ja sovi näyttö
Osoite
Annankatu 34, 00100 Helsinki
Tilatyyppi
Liiketilaa
291 m2
Vapautuu
Heti
Ota yhteyttä
Pyydä lisätietoa
