Vuokrataan toimistotilat - Helsinki
Käenkuja 3, Sörnäinen, 00500 Helsinki #10829934
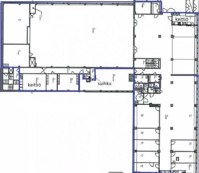
Vuokrataan 1. kerroksen toimistotila Sörnäisistä Hämeentien ja Käenkuja kulmasta.
Erittäin hyvä saavutettavuus julkisilla. Tilassa useita toimistohuoneita ja useampi wc sekä keittiö. Erikoisuutena tilassa jopa 5 m korkea show room tai vaikka juhla/koulutustila. Talossa hyvät palvelut mm. lounasravintola ja vuokrattavia neuvottelutiloja sekä pyöräparkki.
Osoite
Käenkuja 3, 00500 Helsinki
Tilatyyppi
Toimistotilaa
878 m2
Vapautuu
Heti
Ota yhteyttä
Pyydä lisätietoa
