Vuokrataan toimistotilat - Helsinki
Kaivokatu 10, Keskusta, 00100 Helsinki #10829858
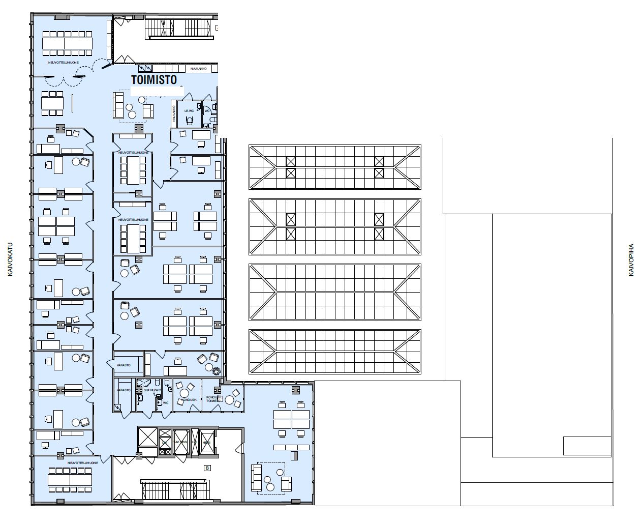
KAIVOKATU 10 A - toimistotila 718m2
Tässä Kaivotalon 7. krs toimistotilassa on reilusti huoneita eri funktioille. Tilassa teams-huoneita, puhelutiloja, neuvottelutiloja, käsivarastoja, keittiö, WC-tiljoja joista yksi inva-mitoituksella ja suihku. Tilaratkaisu on myös muokattavissa käyttäjän toiveiden pohjalta.
Pyöräilijöille kellarissa pyöräparkki. Autopaikkoja (myös latauspisteitä) tarjolla rajallisesti. Tavarahuolto kellarista tai katutasosta tavarahissillä.
Lisätiedot ja kohdenäytöt: p. 040 7070 321 / HeikkiKerros: 7
Osoite
Kaivokatu 10, 00100 Helsinki
Tilatyyppi
Toimistotilaa
718 m2
Kulkuyhteydet
KAIKKI JULKISEN LIIKENTEEN PALVELUT VIERESSÄ
Ota yhteyttä
CRE PREMISES
Puh. Näytä puhelinnumero 020 7290 710
Vantaankoskentie 14
01670 VANTAA
Pyydä lisätietoa
