Vuokrataan toimistotilat - Espoo
Linnoitustie 3, Etelä-Leppävaara, 02600 Espoo #10829845
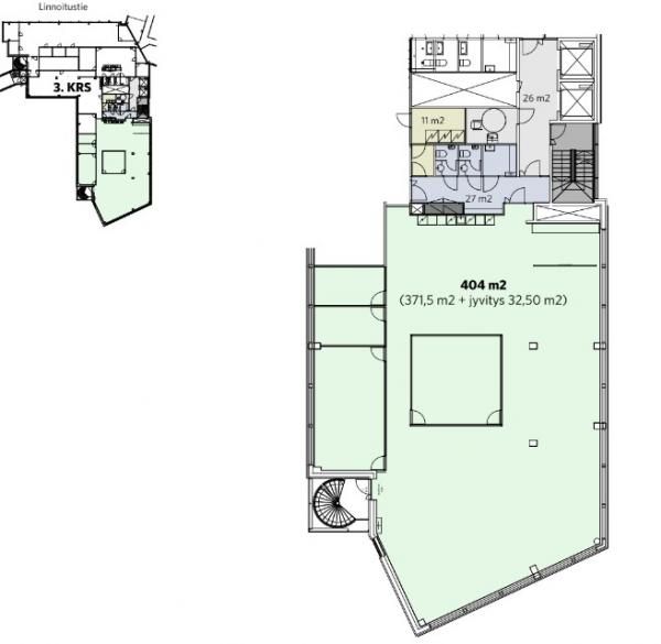
Säteri Business Park Linnoitus. 4 krs. 404m2 toimistotila. Avotilaa sekä 3 huonetta. Tila mukautuu myös jos tarve lisä huonetoimistolle.
Osoite
Linnoitustie 3, 02600 Espoo
Tilatyyppi
Toimistotilaa
404 m2
Kiinteistö
Linnoitus Business park. 3krs. 404m2 moderni toimisto, hyvinllä yhteyksillä, ja lisää palveluita heti viereisesti kiinteistöstä Säteri 6.
Pysäköinti
Pysäköintipaikkoja vuokrattavissa pysäköintihallissa.
Palvelut
Kiinteistössä mm. aulapalvelu, henkilöstöravintola,vuokrattavia neuvottelutiloja, auditorio, kuntosali, ravintola Fortessa vieressä kiinteistössä palvelee.
Kulkuyhteydet
Kiinteistö sijaitsee Raide-Jokerin varrella kivenheiton päässä Sellosta ja Leppävaaran juna-asemasta
Vapautuu
29.08.2025
Kerros
3
Hissi
Ota yhteyttä
TopReal
Hietalahdenranta 17 B, 00180 Helsinki
Näytä puhelinnumero
09 6227 7852
Soita ja kysy lisää, tai tutustu www-sivuihimme!
http://www.topreal.fiPyydä lisätietoa
