Vuokrataan toimistotilat - Helsinki
Kaivokatu 10, Ydinkeskusta, 00100 Helsinki #10829811
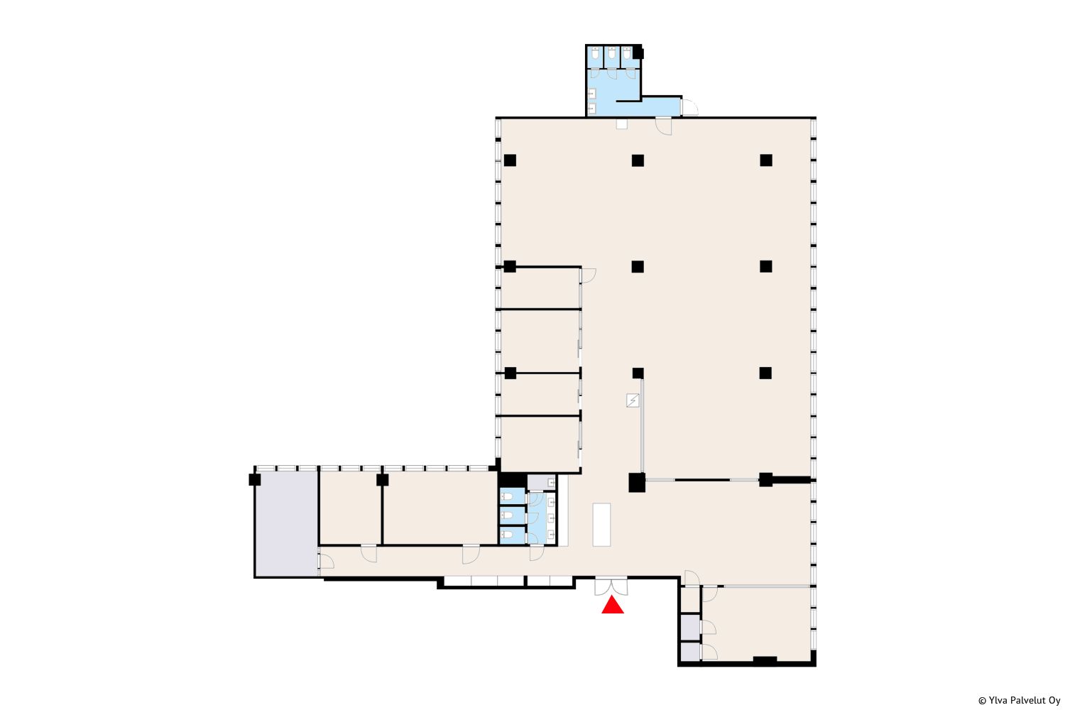
Valoisa toimistotila vuokrattavissa Kaivotalon 6. kerroksesta. Toimistosta on upeat näkymät päärautatieasemalle. Tilassa avotilaa, erillisiä neuvottelu-/ työhuoneita ja wc- tilat.
Osoite
Kaivokatu 10, 00100 Helsinki
Tilatyyppi
Toimistotilaa
582 m2
Kiinteistö
Kaivotalo
Palvelut
Lounasravintola
Muuta
Tilan ominaisuudet: tilassa on ilmastointi, avo-/kombitoimisto
Vapautuu
Vapautumassa oleva
Kerros
6.
Ota yhteyttä
Ylva
Kaivokatu 10 A, 3. krs, PL 1099, 00101 Helsinki
Näytä puhelinnumero
+358 400 352 357
Ville Vaarala
Näytä puhelinnumero
040 569 0699
Pyydä lisätietoa
