Vuokrataan toimistotilat - Helsinki
Hitsaajankatu 4, Herttoniemi, 00810 Helsinki #10829798
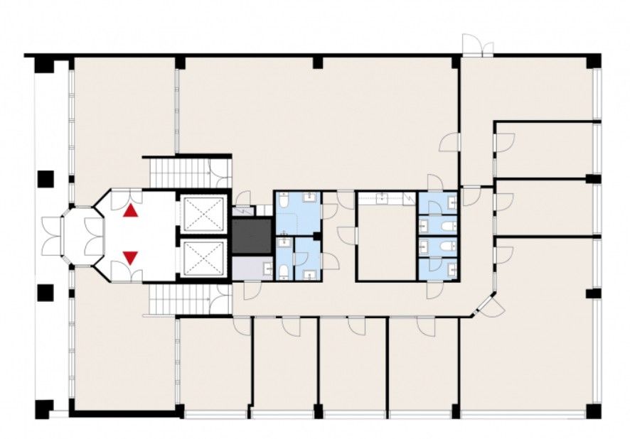
Tarjolla vuokralle siisti ja hyvätasoinen toimistotila, joka sijaitsee erinomaisella paikalla Herttoniemen metroaseman läheisyydessä. Tila koostuu useista toimistohuoneista, kokoustilasta ja taukotilasta. Sisäänkäynti tilaan on suoraan kadulta, ja sisäänkäynnin viereisten huoneiden suuret ikkunat avautuvat suoraan kadulle, tarjoten runsaasti luonnonvaloa ja näkyvyyttä. Tila on helposti muunneltavissa käyttäjän tarpeiden mukaan. Kiinteistössä käytetään vihreää kiinteistösähköä.
Hitsaajankatu 4 on teollisuushenkinen toimistokiinteistö, joka tarjoaa helposti muunneltavaa toimisto- ja varastotilaa, ja jossa on tavarahissi. Kiinteistö sijaitsee loistavalla paikalla lähellä metroasemaa ja Itäväylää, mikä takaa sujuvat liikenneyhteydet niin julkisilla kulkuvälineillä kuin omalla autolla. Herttoniemen alue tarjoaa monipuoliset palvelut, mukaan lukien useita lounasravintoloita. Rakennus on valmistunut vuonna 1980.
Ota yhteyttä ja kysy lisää!
www.blanctoimitilat.fi
Joonas Nuutinen, Toimitila-asiantuntija
+358 40 754 5408
joonas.nuutinen@blanckiinteisto.com
