Vuokrataan toimistotilat - Helsinki
Vattuniemenranta 2, Lauttasaari, 00210 Helsinki #10829780
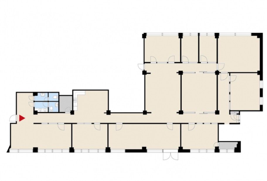
Vuokrataan siisti 339m2 ja jäähdytetty toimistotila Helsingin Lauttasaaressa kiinteistön ensimmäisessä kerroksessa. Tilassa on avotilaa sekä erillisiä huoneita, jotka tarjoavat joustavuutta tilankäytössä.
Helsingin Vattuniemenranta 2 on viihtyisä toimistotalo, joka sijaitsee kauniilla paikalla meren rannassa. Tilat tarjoavat mahdollisuuden joustavaan muokkaukseen, ja joistakin tiloista avautuu ihana merinäköala. Länsimetron lähimmälle asemalle on vajaa kilometri, ja omalla autolla tulijoita palvelee kiinteistön oma pysäköintialue. Kiinteistön energialuokitus on F.
Vuokralaisten käytössä on oma lounasravintola, ja lähialueelta löytyy kattava valikoima lounasravintoloita jokaiseen makuun. Kulkeminen alueelle on vaivatonta niin autolla kuin julkisilla kulkuvälineilläkin.
Ota yhteyttä ja kysy lisää!
www.blanctoimitilat.fi
Joonas Nuutinen, Toimitila-asiantuntija
+358 40 754 5408
joonas.nuutinen@blanckiinteisto.com
