Myydään toimistotilat, liiketilat - Jyväskylä
Rajakatu 20, 40200 Jyväskylä #10829759
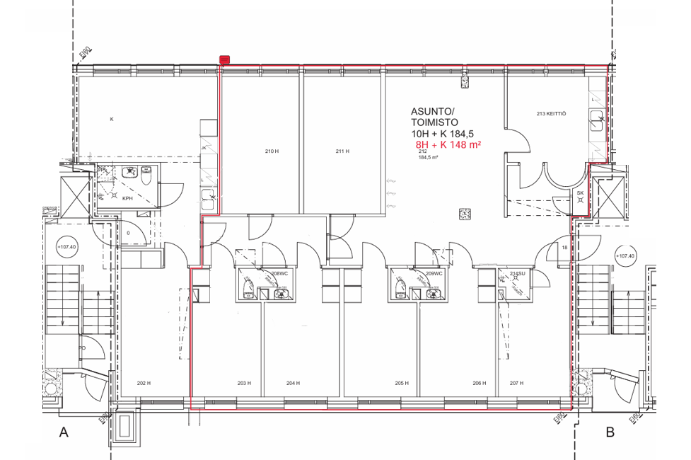
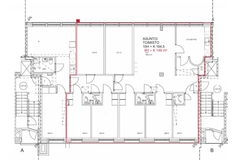
Myydään n. 184,5 m2 toimisto - / liiketilaa Nisulasta Rajakadulta, vastapäätä Jyväskylän ammattikorkeakoulun pääkampusta. 1. kerroksen tilakokonaisuuteen kuuluu 2 vierekkäistä huoneistoa, jossa toisessa 7 työhuonetta, hieman avotilaa sekä 3 WC:tä ja keittiötila. Toisessa huoneistossa on avotilaa, yksi erillinen huone sekä kylpyhuone (ks. pohjakuva).
Toimistotilan sijainti lähellä Jyväskylän keskusta-aluetta ja Harjun ulkoilualuetta.
Pysäköintitilaa saatavilla kiinteistön pihalta.
Toinen huoneisto (7 huonetta, avotilaa, 3 WC:tä + keittiö, n. 148m2) on myös vuokrattavissa liike- tai toimistotilaksi.
Lisätiedot ja näytöt:
Henri Kumpulainen, 040 864 3631, henri.kumpulainen@aveon.fi
Katutasossa
Aveon Real Estate Oy
Kauppakatu 18 C 26, 40100 Jyväskylä
Henri Kumpulainen
Puh.
Näytä puhelinnumero
040 864 3631
henri.kumpulainen@aveon.fi
Olemme kiinteistöliiketoiminnan asiantuntija, joka toimii yrittäjämäisesti neuvonantajana kiinteistökaupoissa, toimitilavälittämisessä sekä kiinteistökehityksessä.
Asiakkaitamme ovat kotimaiset ja ulkomaiset kiinteistönomistajat, -sijoittajat sekä tilojen käyttäjät kaikkialla Suomessa.
