Vuokrataan toimistotilat, liiketilat, muut tilat - Turku
Artturintasku 2B, Kirstinpuisto, 20200 Turku #10829742
Uutta liiketilaa Kirstinpuistosta
Osoite
Artturintasku 2B, 20200 Turku
Tilatyyppi
Toimistotilaa
133 m2
Liiketilaa
133 m2
Muuta tilaa
133 m2
Yhteensä
133 m2
Muuta
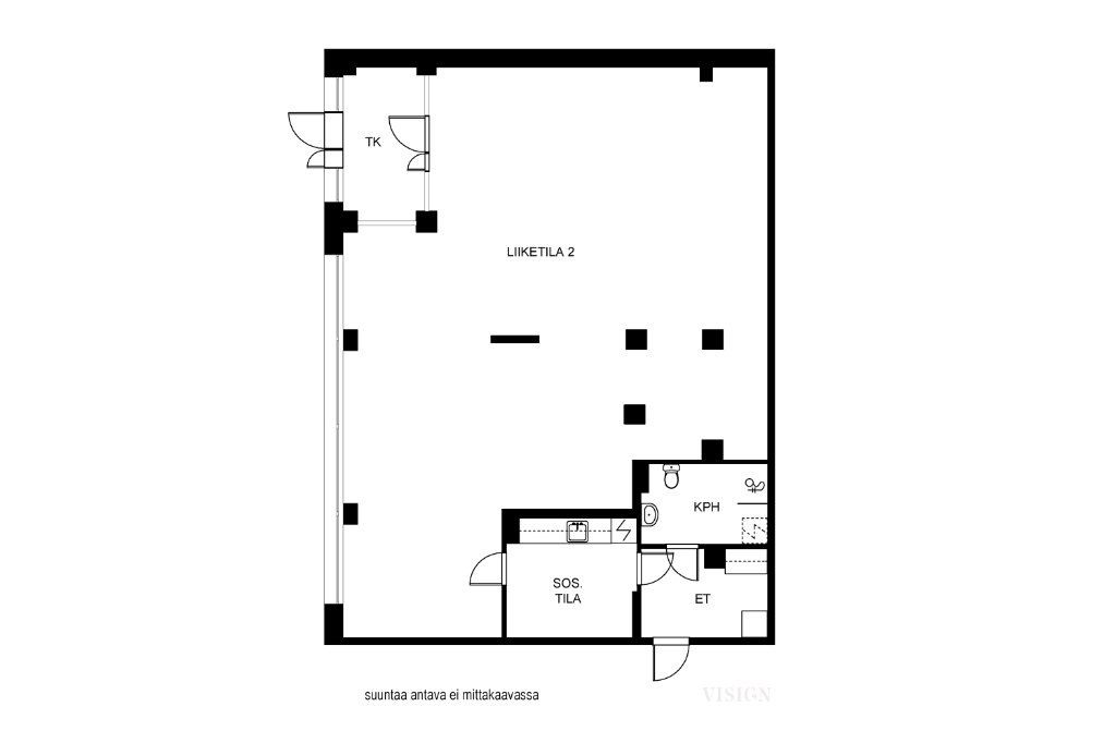
Vuokrattavana 133 m² katutason liiketilaa Kirstinpuiston alueelta. Erinomainen sijainti ja hyvä näkyvyys.
Tila on heti vapaa uudelle käyttäjälle.
Tila on valoisa ja avara, ja se koostuu pääosin suuresta avotilasta. Lisäksi tilassa on oma wc ja keittiö, jotka tukevat päivittäistä työskentelyä.
Kohde soveltuu erinomaisesti liiketilaksi tai toimistokäyttöön.
Tervetuloa tutustumaan, varaathan välittäjältä oman esittelyaikasi. Voit kysyä meiltä myös muita sopivia vaihtoehtoja, kauttamme löydät juuri Teidän tarpeisiinne sopivat tilat. Palvelumme on tilanhakijalle veloitukseton!
Tila on heti vapaa uudelle käyttäjälle.
Tila on valoisa ja avara, ja se koostuu pääosin suuresta avotilasta. Lisäksi tilassa on oma wc ja keittiö, jotka tukevat päivittäistä työskentelyä.
Kohde soveltuu erinomaisesti liiketilaksi tai toimistokäyttöön.
Tervetuloa tutustumaan, varaathan välittäjältä oman esittelyaikasi. Voit kysyä meiltä myös muita sopivia vaihtoehtoja, kauttamme löydät juuri Teidän tarpeisiinne sopivat tilat. Palvelumme on tilanhakijalle veloitukseton!
Vapautuu
Kysy
Kerros
katutaso
Ota yhteyttä
Tuloskiinteistöt Oy
Rikhardinkatu 2 B 5, 00130 Helsinki
Näytä puhelinnumero
(09) 6841 620
Karoliina Eklund
Leasing Support Specialist
Näytä puhelinnumero
+358 40 017 8999
Ritva Nuotio
Commercial Real Estate Advisor LKV, KED
Näytä puhelinnumero
+358 50 5261 744
Pyydä lisätietoa
