Vuokrataan toimistotilat - Jyväskylä
Cygnaeuksenkatu 1, 40100 Jyväskylä #10829738
Vuokrataan eri kokoisia toimistoratkaisuja toisesta kerroksesta Jyväskylän keskustasta Cygnaeuksenkadulta. Toimistotilat ovat n. 61 - 181,5 m2-kokoisia sekä remontoituja ja yleisilmeeltään siistejä. Tila voidaan vuokrata kokonaisuutena tai se voidaan pilkkoa pienempiin osiin. Tila muodostuu eri kokoisista toimistohuoneista, neuvottelutiloista, avotilasta, hiljaisentyöntiloista, keittiö- ja taukotilasta sekä wc-tiloista.
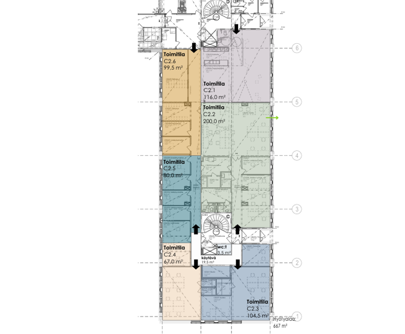
Esimerkkejä saatavilla olevista toimistoista, ks. pohjakuva:
67 m² 2.krs
104,5 m² 2.krs
80 m² 2.krs
200 m² 2.krs
99,5 m² 2.krs
116 m² 2.krs
Kysy lisätiedot tilatarpeesi mukaan!
Tiloissa on koneellinen ilmanvaihto viilennyksellä. Tiloihin kulku on esteetön ja kiinteistössä on hissi. Kiinteistöltä löytyy parkkipaikkoja pihasta ja omasta parkkihallista vapaan tilanteen mukaan. Kolmannen kerroksen ikkunat on Jyväsjärvelle ja sisäpihalle.
Näytöt ja lisätiedot: Henri Kumpulainen, Puh. 040 864 3631, s-posti: henri.kumpulainen@aveon.fi
Näkyvällä paikalla
Jaettavissa
Aveon Real Estate Oy
Kauppakatu 18 C 26, 40100 Jyväskylä
Henri Kumpulainen
Puh.
Näytä puhelinnumero
040 864 3631
henri.kumpulainen@aveon.fi
Olemme kiinteistöliiketoiminnan asiantuntija, joka toimii yrittäjämäisesti neuvonantajana kiinteistökaupoissa, toimitilavälittämisessä sekä kiinteistökehityksessä.
Asiakkaitamme ovat kotimaiset ja ulkomaiset kiinteistönomistajat, -sijoittajat sekä tilojen käyttäjät kaikkialla Suomessa.
