Vuokrataan toimistotilat, liiketilat - Kirkkonummi
Aittakuja 3, 02430 Kirkkonummi #10829719
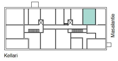
Vuokrataan liike-/toimistotilaa uudiskohteesta Kirkkonummen Masalasta.
Tämä kompakti tila sijaitsee asuinrakennuksen katutasossa. Tilassa wc ja mahdollisuus minikeittiöön. Keskeisen sijaintinsa vuoksi tila soveltuu erinomaisesti niin liiketilaksi kuin esim. isännöintitoimistoksikin.
Aittakuja 3 uudiskohde sijaitsee Kirkkonummella Masalan palveluiden äärellä, juna-aseman läheisyydessä. Kehä-lll läheisyys takaa helpon saavutettavuuden myös autoilijoille.
Lisätiedot ja kohdenäytöt: p. 040 7070 321 / Heikki
Lisää kohteita: www.premises.fi
Kohteella ei ole lain edellyttämää energiatodistusta.
Aittakuja 3 uudiskohde sijaitsee Kirkkonummella Masalan palveluiden äärellä, juna-aseman läheisyydessä. Kehä-lll läheisyys takaa helpon saavutettavuuden myös autoilijoille.
Bussipysäkit: 200 m
Kehä-lll: 1 km
CRE PREMISES
Puh. Näytä puhelinnumero 020 7290 710
Vantaankoskentie 14
01670 VANTAA
