Vuokrataan/myydään varastotilat - Heinola
Satamatie 12, 18100 Heinola #10829718
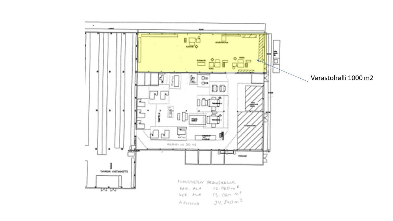
Juuri vapautunut entinen metallipajana toiminut selkeä 1000 m2 noin 5,5 metriä korkea hallitila, jossa 1 lastaustasku. Pieni toimistotila varaston yhteydessä. Tila on yhdistettävissä 1500 m2 (korkeaan) ja 2000 m2 matalampaan (5,5 m) varastotilaan. Kiinteistössä on vuokrattavissa toimistotilaa. Kiinteistössä on sosiaalitilat. Pihalla on erittäin paljon pysäköintitilaa.
Lisätietoja ja esitellyt kohteesta Kari Mäkinen 0400 891 057/ 020 7290 710. Lisää kohteita www.premises.fi
Kohteella ei ole lain edellyttämää energiatodistusta tai energialuokka ei tiedossa.Kerros: 1
CRE PREMISES
Puh. Näytä puhelinnumero 020 7290 710
Vantaankoskentie 14
01670 VANTAA
