Vuokrataan/myydään varastotilat - Heinola
Satamatie 12, 18100 Heinola #10829716
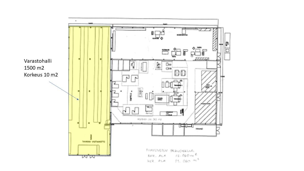
Juuri vapautunut 1500 m2 korkea (noin 10 metriä) lämmin kuiva erittäin varasto, jossa 2 lastaustaskua. Tila on yhdistettävissä 2000 m2 ja 1000 m2 matalampaan (5,5 m) varastotilaan. Kiinteistössä on vuokrattavissa toimistotilaa toisesta kerroksesta. Kiinteistössä on sosiaalitilat ja yhteiskäyttöinen keittiö. Pihalla on erittäin paljon pysäköintitilaa.
Lisätietoja ja esitellyt kohteesta Kari Mäkinen 0400 891 057/ 020 7290 710. Lisää kohteita www.premises.fi
Kohteella ei ole lain edellyttämää energiatodistusta tai energialuokka ei tiedossa.Kerros: 1
CRE PREMISES
Puh. Näytä puhelinnumero 020 7290 710
Vantaankoskentie 14
01670 VANTAA
