Vuokrataan/myydään tuotantotilat, varastotilat - Heinola
Satamatie 12, 18100 Heinola #10829709
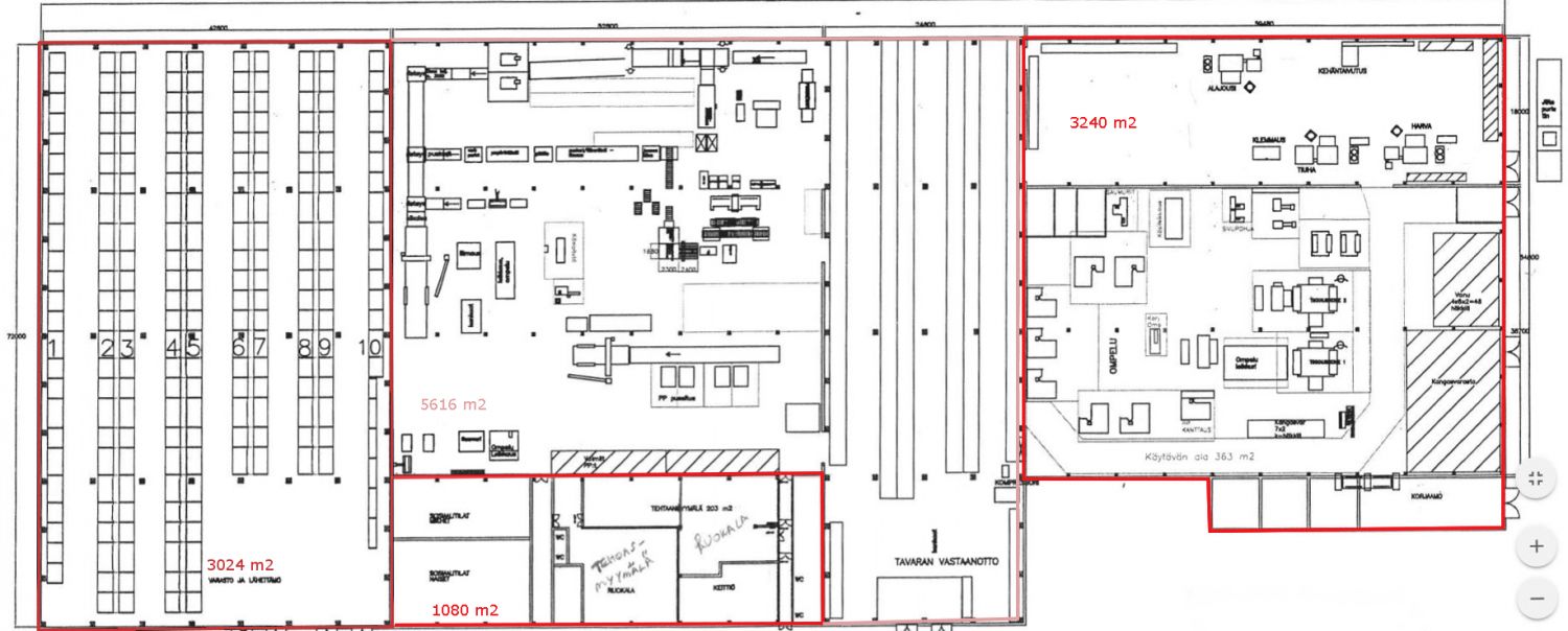
5.5 metriä korkea hallitila sekä n. 1500 m2 10 metriä korkeaa varastoa, jossa 2 lastaustaskua. Tila on osuus teollisuuskiinteistöstä Heinolasta, jossa monipuolista tuotantotilaa n. 7000 m2 ja varastotilaa n. 4900 m2. Lisäksi n. 1000 m2 toimisto-, sosiaali-, keittiö- ja ruokalatilaa. Mahdollista vuokrata myös toimistotilaa varastojen yhteyteen. Kiinteistö on rakennettu 1984 ja se sijaitsee omalla tontilla. Varastojen korkeus vaihtelee aina 10 metriin asti. Valtatie E75 on matkaa 2.8 kilometriä. Tontin koko 62 337 m2.
Lisätietoja ja esitellyt kohteesta Kari Mäkinen 0400 891 057/ 020 7290 710. Lisää kohteita www.premises.fi
Kohteella ei ole lain edellyttämää energiatodistusta tai energialuokka ei tiedossa.Kerros: 1
CRE PREMISES
Puh. Näytä puhelinnumero 020 7290 710
Vantaankoskentie 14
01670 VANTAA
