Vuokrataan toimistotilat - Oulu
Idealinja 13, Oulunportti, 90410 Oulu #10829659
Osoite
Idealinja 13, 90410 Oulu
Tilatyyppi
Toimistotilaa
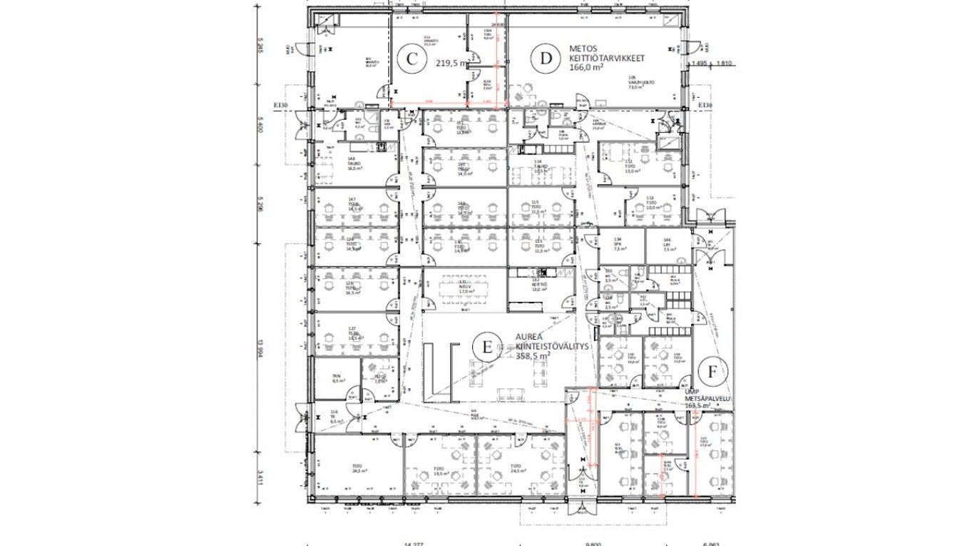
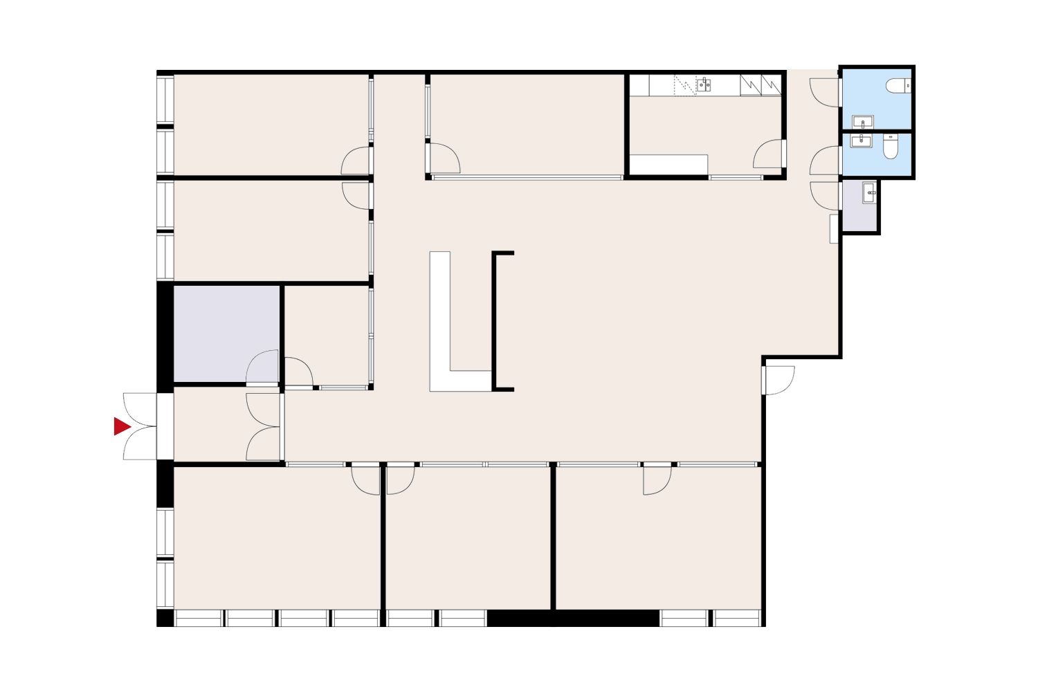
358 m2
Muuta
Tyylikästä toimistotilaa erinomaiselta sijainnilta Oulunportista!
Valoisassa tilassa on useampi erillinen toimistohuone, avotoimistoa sekä keittiö- ja sosiaalitilat. Pihalla on hyvät parkkitilat henkilökunnalle ja asiakkaille. Kohde sijaitsee moottoritien kupeessa Oulunportin alueella, josta on nopea yhteys ympäri kaupunkia ja lentokentälle. Alueella ja Kaakkurin liikekeskuksessa on paljon eri alojen toimijoita. Valomainoksella saat erinomaisen näkyvyyden yrityksellesi.
Ota yhteyttä niin käydään tutustumassa!
Lisätiedot 040 5400 672 tai joni.romppainen@kiinteistotahkola.fi.
Eikö tämä ole sopiva? Kysy muita vaihtoehtojamme!
Valoisassa tilassa on useampi erillinen toimistohuone, avotoimistoa sekä keittiö- ja sosiaalitilat. Pihalla on hyvät parkkitilat henkilökunnalle ja asiakkaille. Kohde sijaitsee moottoritien kupeessa Oulunportin alueella, josta on nopea yhteys ympäri kaupunkia ja lentokentälle. Alueella ja Kaakkurin liikekeskuksessa on paljon eri alojen toimijoita. Valomainoksella saat erinomaisen näkyvyyden yrityksellesi.
Ota yhteyttä niin käydään tutustumassa!
Lisätiedot 040 5400 672 tai joni.romppainen@kiinteistotahkola.fi.
Eikö tämä ole sopiva? Kysy muita vaihtoehtojamme!
Vapautuu
01.06.2026
Kerros
1
Ota yhteyttä
Kiinteistö-Tahkola Oy
Lumijoentie 1, 90400 Oulu
Näytä puhelinnumero
0207 480 250
Joni Romppainen
Näytä puhelinnumero
0405400672
Pyydä lisätietoa
