Myydään liiketilat, tuotantotilat - Heinola
Höylääjäntie 2, 18200 Heinola #10829599
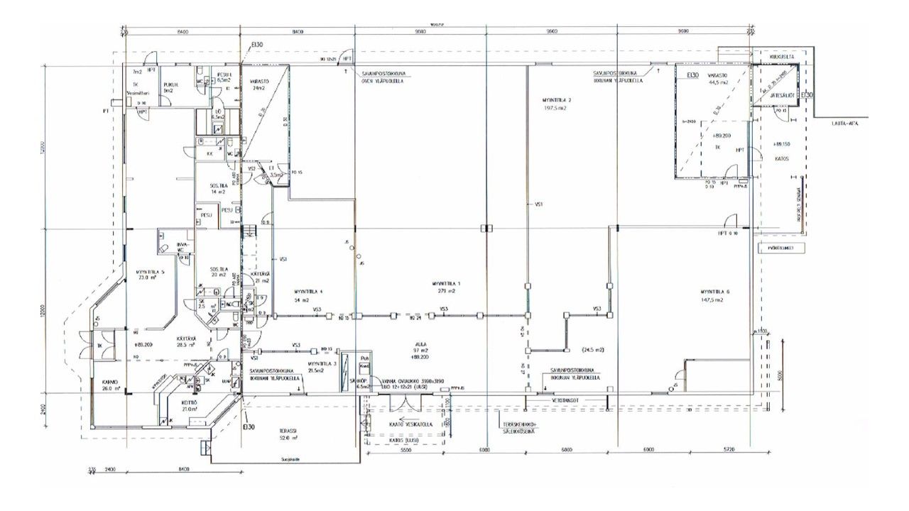
Tämä Heinolan Vuohkallion liikekeskus alueella on myytävänä erittäin hyvä liikekiinteistö. Tämä kiinteistö sijaitsee vilkkaasti liikennöidyn E75:n varrella olevassa kauppakeskittymässä. Alueelle on sijoittunut useita valtakunnallisia toimijoita mm. ABCliikenneasema, Lähiruokatori Heila, Tokmanni, JYSK, nyt uutena toimijan alueella aloittaa toiminnan Puuilo.
Soveltuu erinomaisesti liiketilaksi ja jopa pieneen tuotantoon. Osa tilan päädyssä olevista tiloista on vuokrattu.
Lisätiedot ja esittelyt kohteesta 0207290710/0400891057
Lisää kohteita www.premises.fi
CRE PREMISES
Puh. Näytä puhelinnumero 020 7290 710
Vantaankoskentie 14
01670 VANTAA
