Myydään tuotantotilat, varastotilat, työtilat, muut tilat - Helsinki
Niittyläntie 2, Metsälä, 00620 Helsinki #10829597
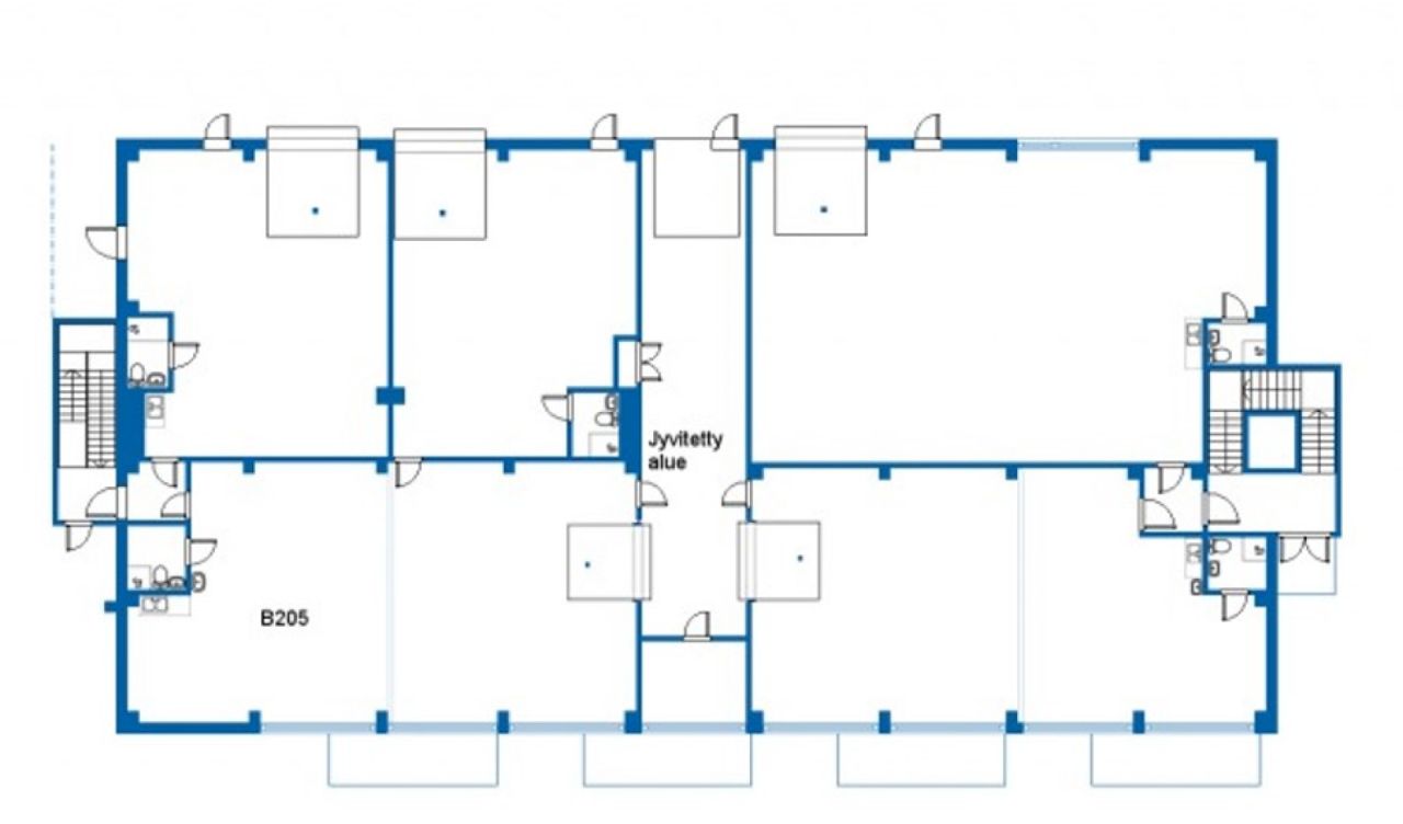
Tuotantotila hyvällä sijainnilla
Kerroksia rakennuksessa on 3.
Hissi löytyy. Lämmitysmuodot ovat kaukolämpö, vesikiertoinen keskuslämmitys.
Yleisettilat: väestönsuoja.
Lämmitetty ajoramppi, joten kulkeminen helppoa myös talvella. Tilassa on valo-/voimavirta pisteitä, minikeittiö sekä tilava wc/suihkutila.
Myös muita tilakokoja saatavilla, osa tiloista yhdistettävissä.
Heti vapaa. Ota rohkeasti yhteyttä!
Habita Finland Oy
Elimäenkatu 17-19 , 00510 Helsinki
Näytä puhelinnumero
010 585 5420
Pasi Saarinen
Näytä puhelinnumero
+358 50 4200103
##Kiinteistönvälitys Helsinki - löydä parhaimmat välittäjät asunnollesi
Meillä on kokemusta kiinteistönvälityksestä yli 35 vuoden ajalta. Ammattitaitomme kattaa sekä Uudenmaan, mutta myös koko Suomen.
Habitan kiinteistönvälittäjät pitävät sinut ajan tasalla koko myynti- ja ostoprosessin ajan. Laadimme myynti- ja markkinointisuunnitelman, joka pohjautuu pitkän linjan kokemukseen mutta myös dataan ja markkinatietoon. Hoidamme myös kaikki paperityöt, joten voit rauhassa keskittyä muuttolaatikoiden pakkaamiseen.
## Asunnon myynti ja osto
Habitalla myytävä asunto menee paikallisiin ja kansainvälisiin myyntiportaaleihin, jossa se on sekä Suomen ostajien että kansainvälisten ostajien nähtävänä. Jos asunnon osto on ajankohtaista, sinulla on käytössäsi Habitan hakuvahti, jolloin saat ensikäden tietoa myyntiin tulleista asunnoista.
## Yli 35 vuotta kiinteistönvälitystä Helsingissä
Habitan lippulaiva sijaitsee kuudennessa kerroksessa Vallilassa osoitteessa Elimäenkatu 17-19. Olemme yli 35 vuotta Suomessa ja ulkomailla toiminut kiinteistönvälitysyritys ja tiedämme, että myyjänä sinä haluat parhaan hinnan asunnostasi järkevällä aikataululla. Kokeile niin tiedät minkälainen on tehokas ja aikaansaava kiinteistönvälittäjä. Tervetuloa käymään tai soita meille, niin laitamme asuntoasiasi kuntoon.
