Vuokrataan toimistotilat - Helsinki
K9, Kaarlenkatu 9-11, Kallio, 00530 Helsinki #10829526
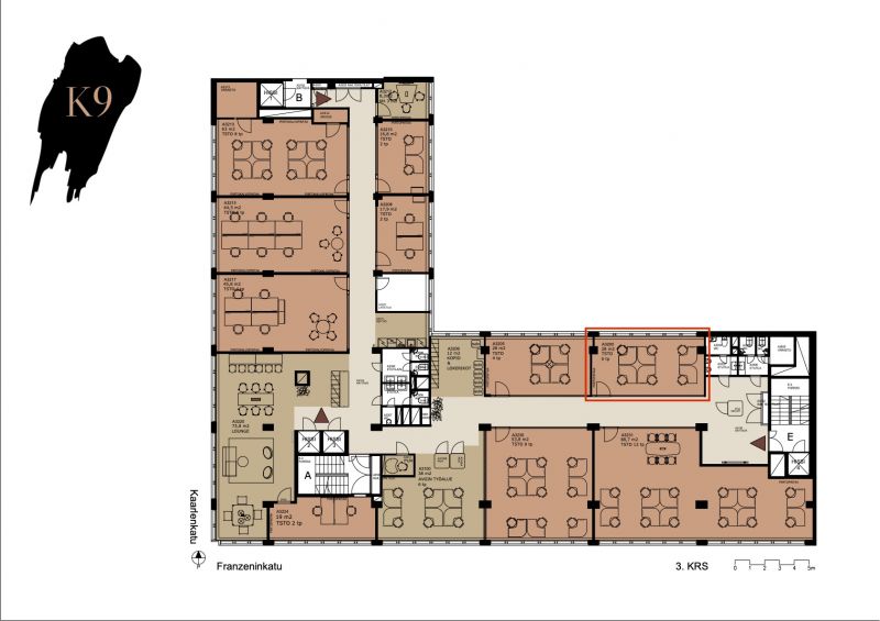
Remontoitu 28 m² toimisto keskeisellä sijainnilla Kaillion sydämessä
Osoite
Kaarlenkatu 9-11, 00530 Helsinki
Tilatyyppi
Toimistotilaa
28 m2
Pohjapiirros
Kiinteistö
K9 tarjoaa elämyksellisiä toimitiloja ja vaivattoman palvelukokonaisuuden. Sen sijainti Kaarlenkadulla keskellä Kallion kaupunginosaa tarjoaa näppärät yhteydet julkisilla kulkuneuvoilla – tai vaikka kävellen.
Kiinteistöstä löytyy täyden palvelun toimisto-, ja työtilojen lisäksi aulapalvelu, tapahtumatila, viihtyisä saunamaailma ja monipuolinen kuntosali. Tyylikäs lounasravintola ja suojaisella sisäpihalla sijaitseva terassipatio luovat ainutlaatuista tunnelmaa ja elämää.
Kiinteistön 3. ja 4. kerroksista löytyy erikokoisia pientoimistoja työpistevarusteltuina tai itse kalustettavaksi. Pientoimistoalueella on viihtyisä yhteiskäyttöinen lounge.
Voit aloittaa K9:ssä joustavasti ja tarpeesi mukaan, jopa muutaman päivän sisään sopimuksen allekirjoituksesta.
Vuokra sisältää toimiston lisäksi yhteiskäyttötilojen veloituksettoman käytön, aulapalvelun, viikoittaisen siivouksen, kahvin sekä langattoman internetin. Tilavuokraan on saatavilla lisämaksusta kalusteet sekä kuntosalin ja neuvottelutilojen käyttöoikeus.
Kiinteistöstä löytyy täyden palvelun toimisto-, ja työtilojen lisäksi aulapalvelu, tapahtumatila, viihtyisä saunamaailma ja monipuolinen kuntosali. Tyylikäs lounasravintola ja suojaisella sisäpihalla sijaitseva terassipatio luovat ainutlaatuista tunnelmaa ja elämää.
Kiinteistön 3. ja 4. kerroksista löytyy erikokoisia pientoimistoja työpistevarusteltuina tai itse kalustettavaksi. Pientoimistoalueella on viihtyisä yhteiskäyttöinen lounge.
Voit aloittaa K9:ssä joustavasti ja tarpeesi mukaan, jopa muutaman päivän sisään sopimuksen allekirjoituksesta.
Vuokra sisältää toimiston lisäksi yhteiskäyttötilojen veloituksettoman käytön, aulapalvelun, viikoittaisen siivouksen, kahvin sekä langattoman internetin. Tilavuokraan on saatavilla lisämaksusta kalusteet sekä kuntosalin ja neuvottelutilojen käyttöoikeus.
Vapautuu
Heti
Rakennusvuosi
1970
Saneerausvuosi
2024
Kerros
3 / 6
Energiatehokkuusluokka
Ei lain edellyttämää energiatodistusta
Hissi
Ota yhteyttä
ScanReal Oy LKV
Opus Business Park
Hitsaajankatu 24
00810 Helsinki
info@scanreal.fi
Puh:
Näytä puhelinnumero
020 730 8830
Sopivat toimitilat yhdellä otolla!
Kartoitamme toimitilatarpeesi ja etsimme yrityksellesi parhaiten sopivat vapaat toimitilat. Koska vuokranantajat maksavat palvelumme, on tämä yrityksellesi veloituksetonta.
OTA YHTEYTTÄ - SOVI NÄYTTÖ!
Kaikki kohteemme eivät ole netissä, kerro tilatarpeesi niin kartoitamme vaihtoehdot.
Palvelumme on tilanhakijalle ilmainen
Pyydä lisätietoa
