Vuokrataan varastotilat - Helsinki
Lönnrotinkatu 12, Punavuori, 00120 Helsinki #10829515
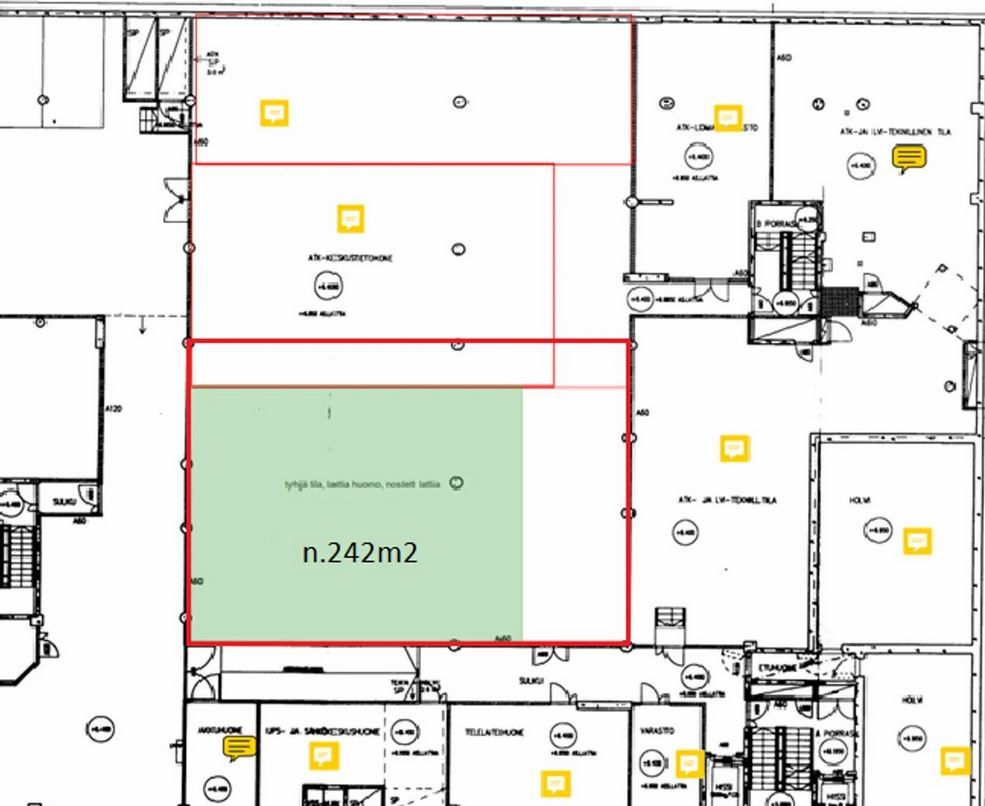
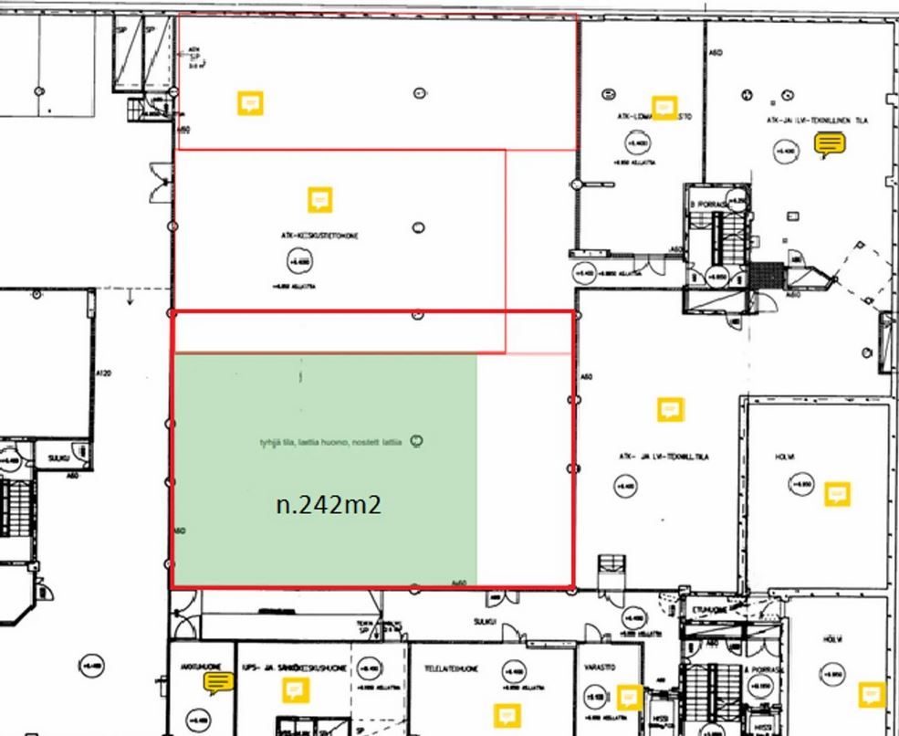
Vuokrattavissa 241m2 varastotila kiinteistön 2. kellarikerroksesta. Varasto-osuus on avonaista tilaa ja sisäänkäynti tilaan tapahtuu autohallin esteettömästi. Tilaan pääsee hyvin mm. rullakolla.
Lönnrotinkatu 12 on Helsingin Kampin ja Punavuoren läheisyydessä sijaitseva asuinkiinteistö, jonka kivijalassa on liiketiloja ja kellarissa vuokrattavia varastotiloja. Se on valmistunut 1992. Se sijaitsee hyvien kulkuyhteyksien varrella Helsingin keskustan tuntumassa.
Lisätietoja numerosta 020 7290 710. Lisää kohteita osoitteessa www.premises.fi.
Kohteella ei ole lain edellyttämää energiatodistusta tai energialuokka ei tiedossa.Kerros: K
CRE PREMISES
Puh. Näytä puhelinnumero 020 7290 710
Vantaankoskentie 14
01670 VANTAA
