Vuokrataan tuotantotilat - Naantali
Patenttikatu 6 D, Luolala, 21100 Naantali #10829480
Hallitilaa toimistolla
Osoite
Patenttikatu 6 D, 21100 Naantali
Tilatyyppi
Tuotantotilaa
627 m2
Kiinteistö
Halli tilavalla pihatilalla Naantalin Luolalassa
Hyvien kulkuyhteyksien varrella sijaitseva hyväkuntoinen ja siisti varasto- tai tuotantotila toimistotilalla sekä tilavilla sosiaali- ja pukuhuonetiloilla.
-Varasto-, tuotantotilaa : 425 m2
-Toimisto- ja sosiaalitiloja: noin 100 m2 + noin 25 m2 alakerrassa hallin yhteydessä
425 m2:n varasto- ja tuotantotilan korkeus on 5,5 m, lattian kantavuus 1.500 kg /m2. Tilassa on vesikiertoinen lattialämmitys ja iso nosto-ovi 3,55m x 4,5 m. Hallin yhteydessä toimisto noin 20 m2 ja siivouskomero.
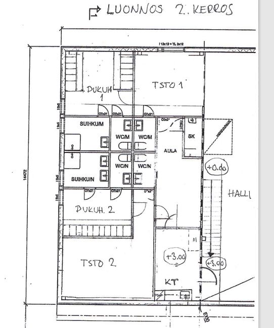
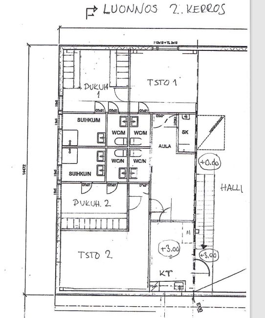
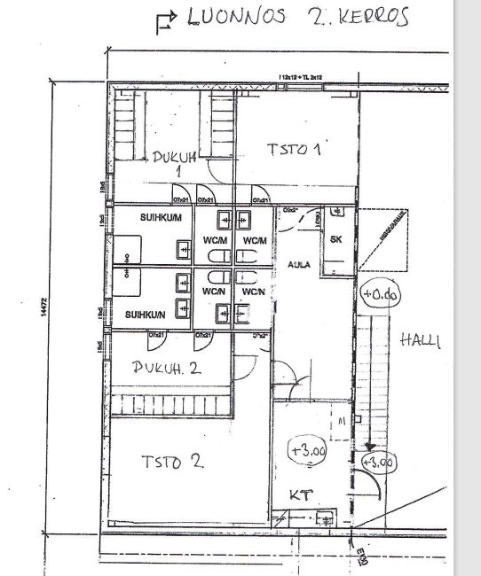
Hallista käynti portaita pitkin 2. kerroksen toimisto- ja sosiaalitiloihin, joissa mm. suihkutilat erikseen naisille ja miehille + 6 x wc. Toisen kerroksen tilat ovat toimistokäytössä tällä hetkellä ja pinnoiltaan erittäin siistit.
Kiinteistössä on koneellinen ilmanvaihto.
Vuokralainen tekee oman sähkösopimuksen. Vedenkulutuksesta veloitetaan kulutuksen mukaan. Pihan talvikunnossapidosta voidaan sopia osapuolten kesken. Vuokra ei sisällä lämmitystä.
Piha-alueelta on myös mahdollista vuokrata kylmää varastotilaa edullisesti.
Sijainti
Sijaitsee Luolalan liittymän ja Naantalin sataman välisellä vireällä teollisuusalueella. Viereisessä kiinteistössä mm. lounasravintola ja rekkapesula. Ympäristössä paljon palveluita.
Vuokrattavan tilan edessä on suuri asvaltoitu piha-alue, jossa autopaikoitusmahdollisuus.
Kiinnostuitko? Soita ja kysy lisää.
Hyvien kulkuyhteyksien varrella sijaitseva hyväkuntoinen ja siisti varasto- tai tuotantotila toimistotilalla sekä tilavilla sosiaali- ja pukuhuonetiloilla.
-Varasto-, tuotantotilaa : 425 m2
-Toimisto- ja sosiaalitiloja: noin 100 m2 + noin 25 m2 alakerrassa hallin yhteydessä
425 m2:n varasto- ja tuotantotilan korkeus on 5,5 m, lattian kantavuus 1.500 kg /m2. Tilassa on vesikiertoinen lattialämmitys ja iso nosto-ovi 3,55m x 4,5 m. Hallin yhteydessä toimisto noin 20 m2 ja siivouskomero.
Hallista käynti portaita pitkin 2. kerroksen toimisto- ja sosiaalitiloihin, joissa mm. suihkutilat erikseen naisille ja miehille + 6 x wc. Toisen kerroksen tilat ovat toimistokäytössä tällä hetkellä ja pinnoiltaan erittäin siistit.
Kiinteistössä on koneellinen ilmanvaihto.
Vuokralainen tekee oman sähkösopimuksen. Vedenkulutuksesta veloitetaan kulutuksen mukaan. Pihan talvikunnossapidosta voidaan sopia osapuolten kesken. Vuokra ei sisällä lämmitystä.
Piha-alueelta on myös mahdollista vuokrata kylmää varastotilaa edullisesti.
Sijainti
Sijaitsee Luolalan liittymän ja Naantalin sataman välisellä vireällä teollisuusalueella. Viereisessä kiinteistössä mm. lounasravintola ja rekkapesula. Ympäristössä paljon palveluita.
Vuokrattavan tilan edessä on suuri asvaltoitu piha-alue, jossa autopaikoitusmahdollisuus.
Kiinnostuitko? Soita ja kysy lisää.
Vapautuu
Kysy
Kerros
1. ja 2
Ota yhteyttä
Logistila Oy
Tuureporinkatu 6, 20100 TURKU
Stina Lindroos
Näytä puhelinnumero
044 972 9468
Pyydä lisätietoa
