Vuokrataan toimistotilat, liiketilat, varastotilat - Hyvinkää
Hakakalliontie 7, Hakakallio, 05460 Hyvinkää #10829475
Varastotilaa Hyvinkäältä
Osoite
Hakakalliontie 7, 05460 Hyvinkää
Tilatyyppi
Toimistotilaa
1870 m2
Liiketilaa
1870 m2
Varastotilaa
1870 m2
Yhteensä
1870 m2
Muuta
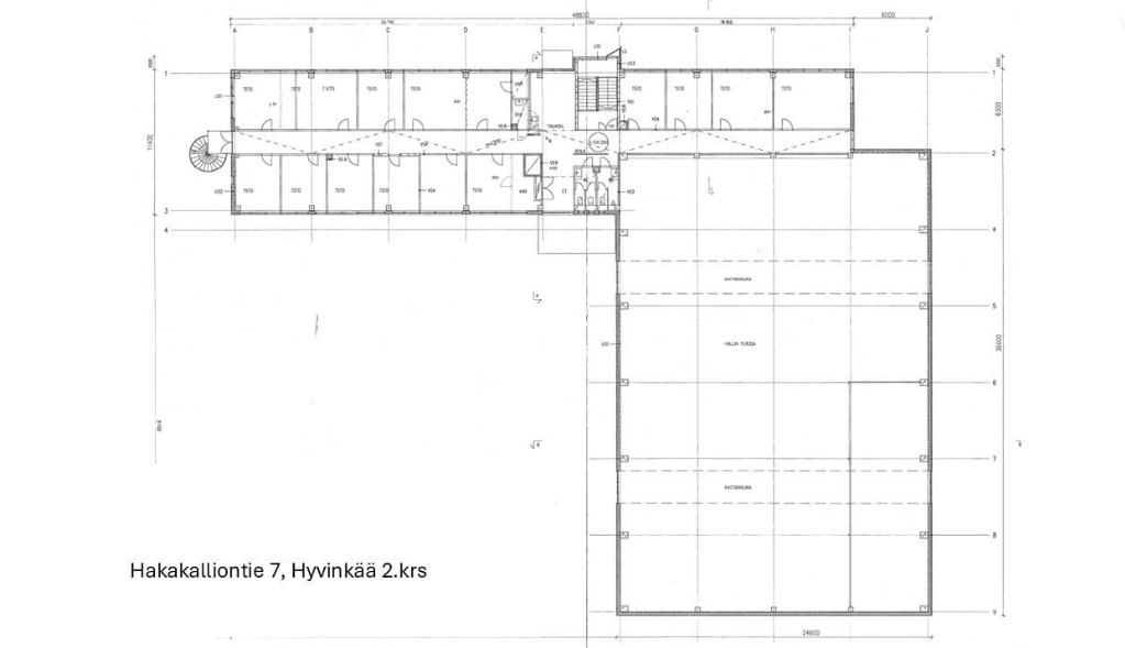
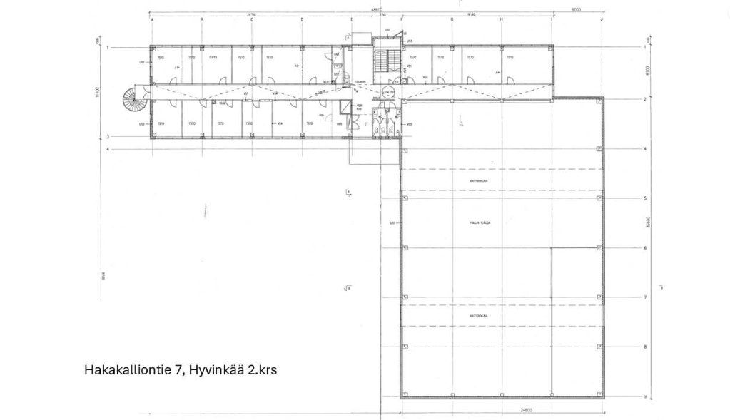
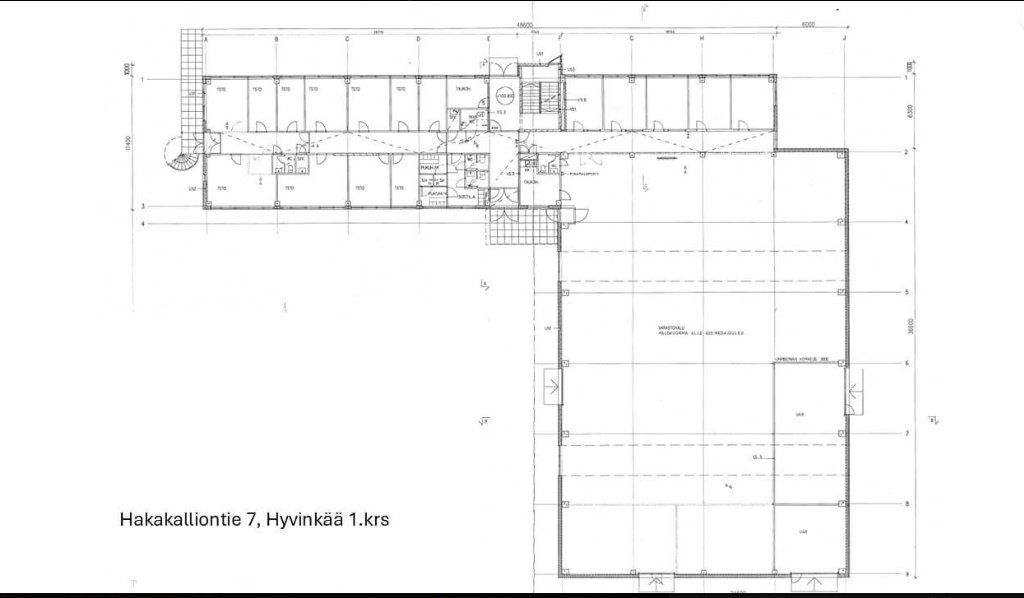
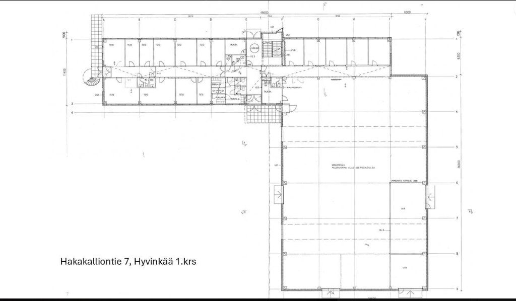
Vuokrattavana 1870 m² varastotilaa Hyvinkään Hakakalliosta.
Tila tarjoaa toimivan kokonaisuuden varasto- ja liiketoimintaan. Kiinteistössä on laaja varasto-/myymälätila, jota täydentävät siistit toimistotilat. Kokonaisuus sopii hyvin esimerkiksi logistiikkaan, tukkukauppaan tai muuhun liiketoimintaan, jossa tarvitaan sekä varastointi- että hallintotiloja.
Piha-alue on tilava ja mahdollistaa sujuvan liikenteen ja tavaraliikenteen hoitamisen. Kohde sijaitsee erinomaisella paikalla Hyvinkään Hakakalliossa, logistisesti toimivalla alueella, jonne on hyvät yhteydet eri suunnista.
Tervetuloa tutustumaan, varaathan välittäjältä oman esittelyaikasi. Voit kysyä meiltä myös muita sopivia vaihtoehtoja, kauttamme löydät juuri Teidän tarpeisiinne sopivat tilat. Palvelumme on tilanhakijalle veloitukseton!
Tila tarjoaa toimivan kokonaisuuden varasto- ja liiketoimintaan. Kiinteistössä on laaja varasto-/myymälätila, jota täydentävät siistit toimistotilat. Kokonaisuus sopii hyvin esimerkiksi logistiikkaan, tukkukauppaan tai muuhun liiketoimintaan, jossa tarvitaan sekä varastointi- että hallintotiloja.
Piha-alue on tilava ja mahdollistaa sujuvan liikenteen ja tavaraliikenteen hoitamisen. Kohde sijaitsee erinomaisella paikalla Hyvinkään Hakakalliossa, logistisesti toimivalla alueella, jonne on hyvät yhteydet eri suunnista.
Tervetuloa tutustumaan, varaathan välittäjältä oman esittelyaikasi. Voit kysyä meiltä myös muita sopivia vaihtoehtoja, kauttamme löydät juuri Teidän tarpeisiinne sopivat tilat. Palvelumme on tilanhakijalle veloitukseton!
Vapautuu
Kysy
Kerros
1-2
Ota yhteyttä
Tuloskiinteistöt Oy
Rikhardinkatu 2 B 5, 00130 Helsinki
Näytä puhelinnumero
(09) 6841 620
Jorma Ryynänen
Commercial Real Estate Advisor LKV, LVV
Näytä puhelinnumero
+358 40 708 4064
Nina Meyke
Commercial Real Estate Advisor
Näytä puhelinnumero
+358 50 466 1519
Pyydä lisätietoa
