Vuokrataan toimistotilat - Helsinki
Pitäjänmäen Voltti, Hiomotie 32, Pitäjänmäki, 00380 Helsinki #10829462
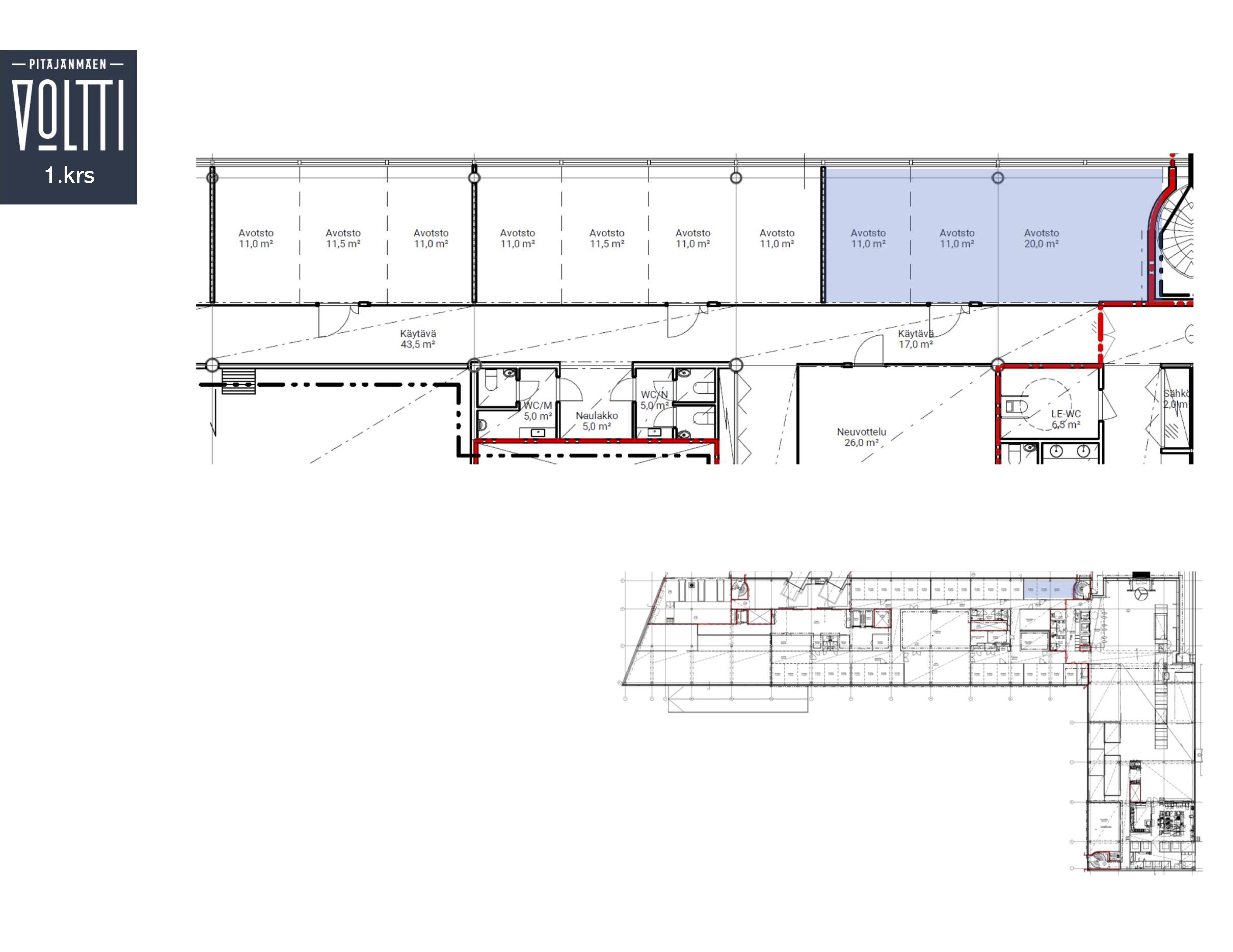
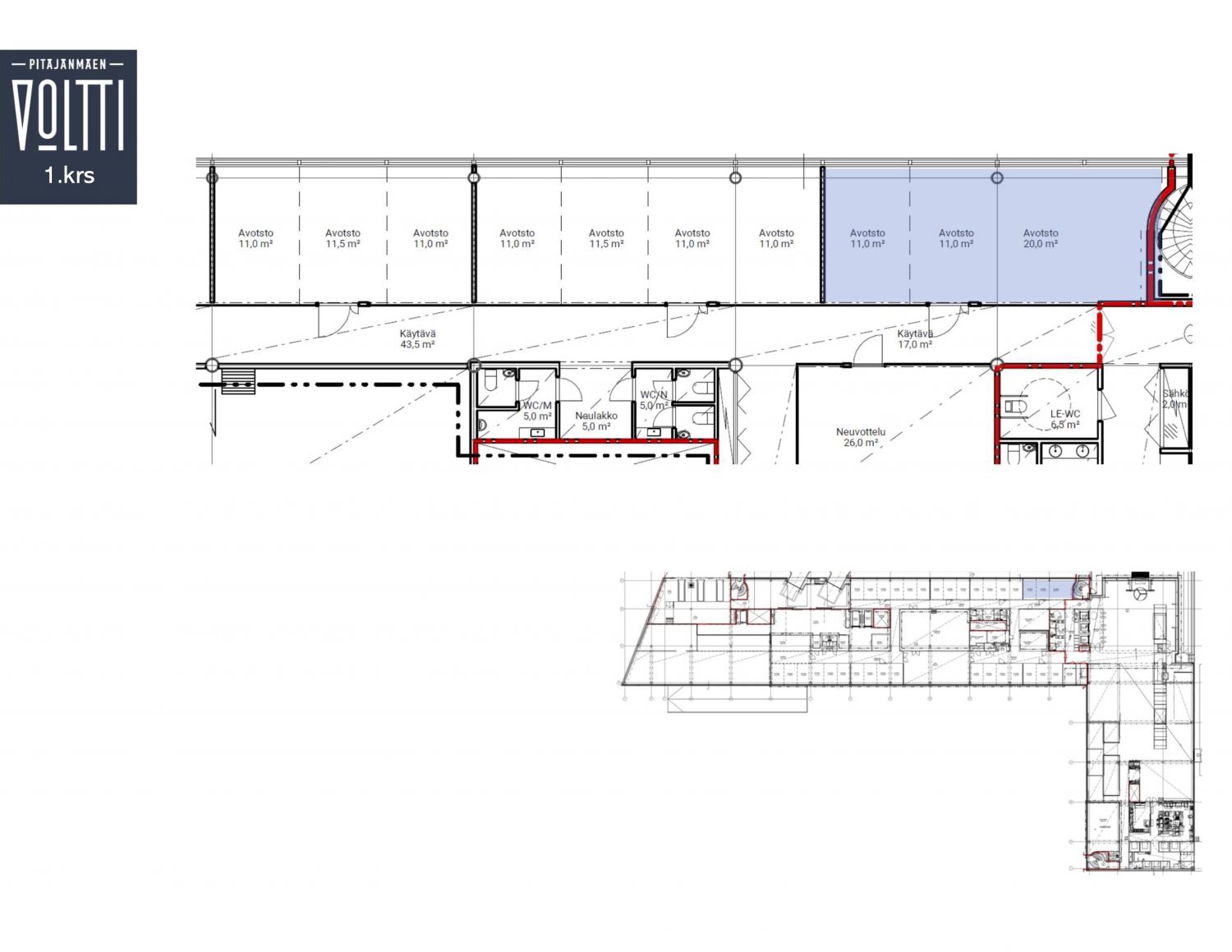
Moderni ensimmäisen kerroksen 42 m² toimistotila tyylikkäässä kiinteistössä
Osoite
Hiomotie 32, 00380 Helsinki
Tilatyyppi
Toimistotilaa
42 m2
Pohjapiirros
Kiinteistö
Pitäjänmäen Voltti on moderni ja tyylikäs sekä palveluiltaan laadukas toimistotalo Pitäjänmäen yritysalueella. Teräsrunkoinen lasinen rakennus huokuu teknologista edelläkävijyyttä ja huippuosaamista.
Helsingin Pitäjänmäessä sijaitseva Strömbergin alue on nimetty suomalaisen sähkötekniikan pioneerin Gottfrid Strömbergin mukaan. Sähkön maailma on antanut inspiraation myös Pitäjänmäen Voltille – tai lyhyemmin Voltille, jonka näyttävän julkisivun sisältä löydät modernit työtilat sekä konesalimahdollisuudet ja pihalta jykevät varavirtajärjestelmät, jotka takaavat virtaa ja tehoa työskentelyyn.
Kevan rakennuttama Voltin rakennus valmistui vuonna 1999 ja se pistettiin täysin uuteen uskoon vuonna 2020. Nyt kiinteistön 26.716 m² tarjoavat vuokralaisille niin toimivat tilat tehokkaaseen työskentelyyn kuin viihtyisät yleiset tilat monipuoliseen toimintaan. Tiloja on kuudessa kerroksessa eri kokoluokan yrityksille 45 m² - 1 800 m².
Rakennuksen palvelut kattavat kaiken neuvottelukeskuksesta aina ravintola- ja catering-palveluihin sekä kuntosaliin ja edustussaunaan. Talon ensimmäisessä kerroksessa toimii täysin uudistettu 170 asiakaspaikan lounasravintola Kuohu, jonka palvelut tarjoaa Antell Oy. Lounastarjoilun lisäksi ravintola toimittaa tarvittaessa kokoustarjoiluja ensimmäisen kerroksen neuvottelutiloihin, ylimmän kerroksen saunalle sekä tarvittaessa myös vuokralaisten omiin tiloihin.
Alueella on hyvät julkisen liikenteen palvelut. Pitäjänmäen ja Vihdintien bussilinjat sekä Valimon junaseisake mahdollistavat sujuvan kulkemisen alueelle ja raidejokerin valmistuminen parantaa liikenneyhteyksiä entisestään. Kiinteistössä on lisäksi yli 200 autopaikan pysäköintihalli ja sisäänkäynnin edustalla 24 vieraspaikkaa.
Helsingin Pitäjänmäessä sijaitseva Strömbergin alue on nimetty suomalaisen sähkötekniikan pioneerin Gottfrid Strömbergin mukaan. Sähkön maailma on antanut inspiraation myös Pitäjänmäen Voltille – tai lyhyemmin Voltille, jonka näyttävän julkisivun sisältä löydät modernit työtilat sekä konesalimahdollisuudet ja pihalta jykevät varavirtajärjestelmät, jotka takaavat virtaa ja tehoa työskentelyyn.
Kevan rakennuttama Voltin rakennus valmistui vuonna 1999 ja se pistettiin täysin uuteen uskoon vuonna 2020. Nyt kiinteistön 26.716 m² tarjoavat vuokralaisille niin toimivat tilat tehokkaaseen työskentelyyn kuin viihtyisät yleiset tilat monipuoliseen toimintaan. Tiloja on kuudessa kerroksessa eri kokoluokan yrityksille 45 m² - 1 800 m².
Rakennuksen palvelut kattavat kaiken neuvottelukeskuksesta aina ravintola- ja catering-palveluihin sekä kuntosaliin ja edustussaunaan. Talon ensimmäisessä kerroksessa toimii täysin uudistettu 170 asiakaspaikan lounasravintola Kuohu, jonka palvelut tarjoaa Antell Oy. Lounastarjoilun lisäksi ravintola toimittaa tarvittaessa kokoustarjoiluja ensimmäisen kerroksen neuvottelutiloihin, ylimmän kerroksen saunalle sekä tarvittaessa myös vuokralaisten omiin tiloihin.
Alueella on hyvät julkisen liikenteen palvelut. Pitäjänmäen ja Vihdintien bussilinjat sekä Valimon junaseisake mahdollistavat sujuvan kulkemisen alueelle ja raidejokerin valmistuminen parantaa liikenneyhteyksiä entisestään. Kiinteistössä on lisäksi yli 200 autopaikan pysäköintihalli ja sisäänkäynnin edustalla 24 vieraspaikkaa.
Vapautuu
Heti
Rakennusvuosi
1999
Saneerausvuosi
2020
Kerros
1 / 8
Energiatehokkuusluokka
E2013
Näkyvällä paikalla
Hissi
Ota yhteyttä
ScanReal Oy LKV
Opus Business Park
Hitsaajankatu 24
00810 Helsinki
info@scanreal.fi
Puh:
Näytä puhelinnumero
020 730 8830
Sopivat toimitilat yhdellä otolla!
Kartoitamme toimitilatarpeesi ja etsimme yrityksellesi parhaiten sopivat vapaat toimitilat. Koska vuokranantajat maksavat palvelumme, on tämä yrityksellesi veloituksetonta.
OTA YHTEYTTÄ - SOVI NÄYTTÖ!
Kaikki kohteemme eivät ole netissä, kerro tilatarpeesi niin kartoitamme vaihtoehdot.
Palvelumme on tilanhakijalle ilmainen
Pyydä lisätietoa
