Vuokrataan toimistotilat - Helsinki
Fokus, Paciuksenkatu 21, Meilahti, 00270 Helsinki #10829441
Moderni 415 m² toimisto Helsingissä Meilahdessa, keskeisellä paikalla hyvien kulkuyhteyksien varrella.
Osoite
Paciuksenkatu 21, 00270 Helsinki
Tilatyyppi
Toimistotilaa
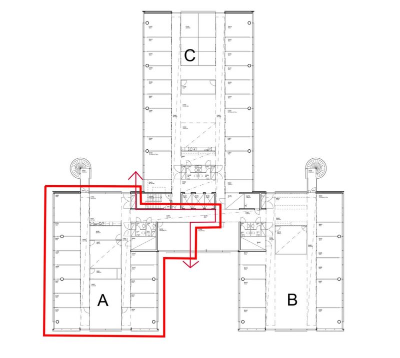
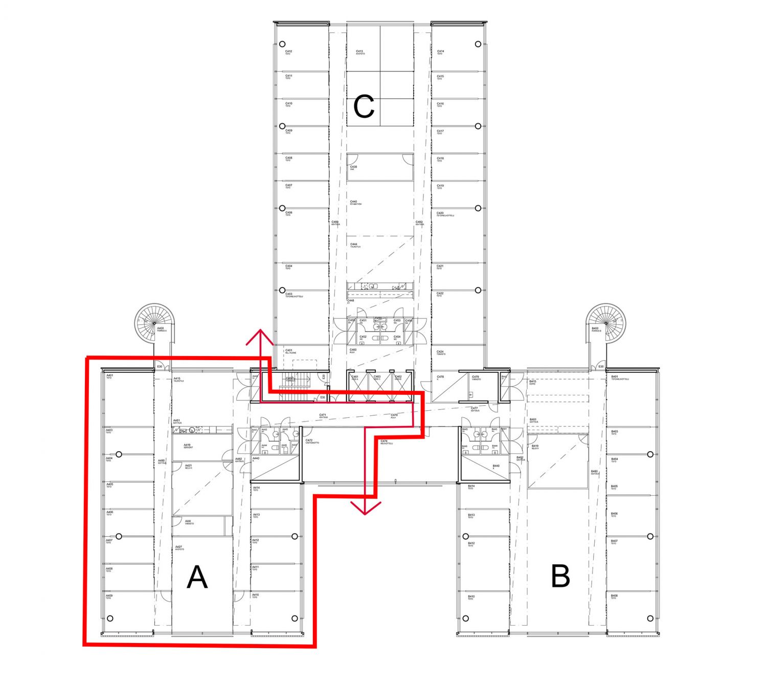
415,5 m2
Pohjapiirros
Kiinteistö
Fokus on Paciuksenkatu 21:ssä Helsingin Meilahdessa sijaitseva toimistokiinteistö, joka tarjoaa erinomaisen toimintaympäristön ajatustyölle; loistavan sijainnin, tehokkaat toimitilat ja ajanmukaisimmat palvelut yrityksille.
Rakennus on valmistunut vuonna 2002.
Kiinteistön 2. kerroksessa toimii lounasravintola, ja kiinteistöstä löytyy kaksi neuvottelutilaa. Toinen tila sijaitsee ravintolan yhteydessä.
Kiinteistön 8. kerroksesta löytyy sauna- ja neuvottelutilat jotka ovat kaikkien vuokralaisten käytössä veloituksetta.
Aulapalvelun peruspalvelun tehtäviin kuuluu mm. taloon tulevien vieraiden vastaanotto ja opastus, postin jakelu, erilaisten hälytysten vastaanottaminen ja ilmoittaminen edelleen ja toimitiloihin liittyvien palvelutarpeiden vastaanotto ja edelleen ilmoittaminen.
Autohallit kahdessa kellarikerroksessa (kaikki pihapaikat merkitty yrityksille / heidän asiakkailleen, henkilökunnan kaikki paikat autokellarissa).
Helsingin keskustasta ajaa useita linja-autoja Paciuksenkatua pitkin ja raitiovaunupysäkki on kiinteistön kohdalla.
Rakennus on valmistunut vuonna 2002.
Kiinteistön 2. kerroksessa toimii lounasravintola, ja kiinteistöstä löytyy kaksi neuvottelutilaa. Toinen tila sijaitsee ravintolan yhteydessä.
Kiinteistön 8. kerroksesta löytyy sauna- ja neuvottelutilat jotka ovat kaikkien vuokralaisten käytössä veloituksetta.
Aulapalvelun peruspalvelun tehtäviin kuuluu mm. taloon tulevien vieraiden vastaanotto ja opastus, postin jakelu, erilaisten hälytysten vastaanottaminen ja ilmoittaminen edelleen ja toimitiloihin liittyvien palvelutarpeiden vastaanotto ja edelleen ilmoittaminen.
Autohallit kahdessa kellarikerroksessa (kaikki pihapaikat merkitty yrityksille / heidän asiakkailleen, henkilökunnan kaikki paikat autokellarissa).
Helsingin keskustasta ajaa useita linja-autoja Paciuksenkatua pitkin ja raitiovaunupysäkki on kiinteistön kohdalla.
Vapautuu
Heti
Rakennusvuosi
2002
Kerros
4 / 7
Energiatehokkuusluokka
E2013
Hissi
Ota yhteyttä
ScanReal Oy LKV
Opus Business Park
Hitsaajankatu 24
00810 Helsinki
info@scanreal.fi
Puh:
Näytä puhelinnumero
020 730 8830
Sopivat toimitilat yhdellä otolla!
Kartoitamme toimitilatarpeesi ja etsimme yrityksellesi parhaiten sopivat vapaat toimitilat. Koska vuokranantajat maksavat palvelumme, on tämä yrityksellesi veloituksetonta.
OTA YHTEYTTÄ - SOVI NÄYTTÖ!
Kaikki kohteemme eivät ole netissä, kerro tilatarpeesi niin kartoitamme vaihtoehdot.
Palvelumme on tilanhakijalle ilmainen
Pyydä lisätietoa
