Vuokrataan toimistotilat - Helsinki
Eteläranta 14, Kaartinkaupunki, 00130 Helsinki #10829426
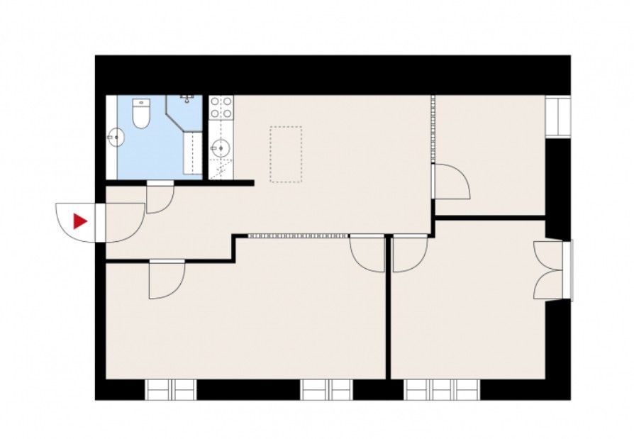
Tyylikkäästi remontoitu ylimmän kerroksen toimisto Helsingin keskustassa, Kauppatorin laidalla. Tilassa on useita toimistohuoneita, keittiö sekä suihku- ja wc-tilat. Kiinteistö sijaitsee Esplanadin puiston läheisyydessä, ja siitä avautuvat upeat näkymät merelle ja Katajanokalle.
Toimitila on helposti muunneltavissa vuokralaisen tarpeiden mukaan. Kiinteistön sijainti tarjoaa erinomaiset julkiset kulkuyhteydet ja mahdollisuuden pysäköidä kiinteistön sisäpihalle. Kiinteistö on BREEAM In-Use Good -sertifioitu ja käyttää vihreää kiinteistösähköä.
Ota yhteyttä ja kysy lisää!
Tiesitkö, että tilanhakijalle palvelumme on maksuton?
www.blanctoimitilat.fi
Joonas Nuutinen
Toimitila-asiantuntija
+358 40 754 5408
joonas.nuutinen@blanckiinteisto.com
