Vuokrataan toimistotilat - Espoo
Ahventie 4, 02170 Espoo #10829407
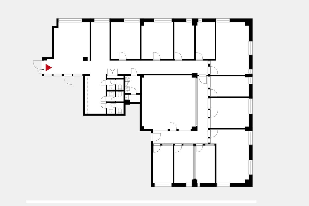
Vuokrataan viidennen kerroksen toimistotilaa Ahti Business Parkissa Haukilahdessa. Kohde käsittää useita toimistohuoneita, missä jokaisessa ikkuna, tiimityöskentelytiloja, neuvottelutilaa, sosiaalitilat ja keittiön. Kohde soveltuu loistavasti mm. taloushallintoa harjoittavalle toimijalle.
Kohteessa on hyvät liiketoimintaa tukevat palvelut vuokralaiselle, kuten aulapalvelu, vuokrattavia kokous- ja neuvottelutiloja, laadukas lounasravintola sekä reilusti pysäköintitilaa. Ahti Business Parkille on myönnetty myös ympäristösertifikaatti.
Kohteen saavutettavuus on mitä mainioin, koska kohde sijaitsee Länsiväylän varressa. Omalla autolla Helsingin keskustaan 15 min ja Matinkylään Ison Omenan kauppakeskukseen n. 5 minuuttia. Pysäköintipaikkoja autohallissa ja ulkokannella. Lähin bussipysäkki on aivan talon vieressä ja Niittykummun metroasema vain kävelymatkan päässä. Kiinteistössä on myös laadukas pyöräparkki ja siistit pukuhuonetilat työmatkapyöräilijöille.
Ota yhteyttä ja kysy lisää!
Tiesitkö, että tilanhakijalle palvelumme on maksuton?
www.blanctoimitilat.fi
Joonas Nuutinen
Toimitila-asiantuntija
+358 40 754 5408
joonas.nuutinen@blanckiinteisto.com
