Vuokrataan toimistotilat - Helsinki
Hitsaajankatu 22, Herttoniemi, 00810 Helsinki #10829393
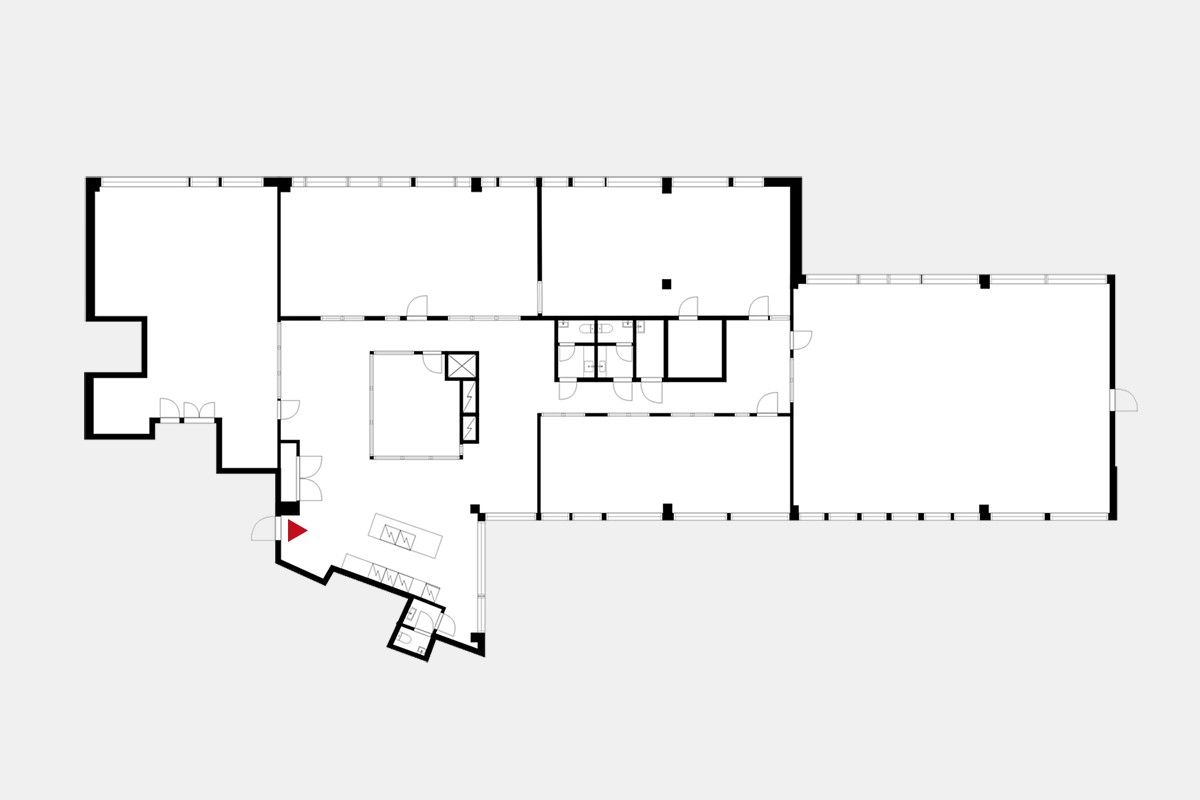
Viidennessä kerroksessa on vapaana 552 m² tilakokonaisuus, joka sisältää useita huoneita, lounge-/taukotilan ja neuvotteluhuoneen. Tila voidaan tarvittaessa jakaa useammalle käyttäjälle. Opus Business Park tarjoaa kattavat palvelut ja hyvät yhteydet, niin omalla autolla kuin julkisilla liikennevälineillä. Kiinteistössä on lämmin pysäköintihalli 440 ajoneuvolle ja runsaasti kadunvarsipaikkoja lyhyempiin tarpeisiin.
Ota yhteyttä ja tule tutustumaan!
www.blanctoimitilat.fi
Joonas Nuutinen, toimitila-asiantuntija
+358 40 754 5408
joonas.nuutinen@blanckiinteisto.com
HUOM! Tilanhakijalle palvelumme on maksuton!
Osoite
Hitsaajankatu 22, 00810 Helsinki
Tilatyyppi
Toimistotilaa
552 m2
Vapautuu
Heti vapaa
Kerros
5
Ota yhteyttä
Pyydä lisätietoa
