Vuokrataan toimistotilat - Helsinki
Bulevardi 1, Keskusta, 00100 Helsinki #10829311
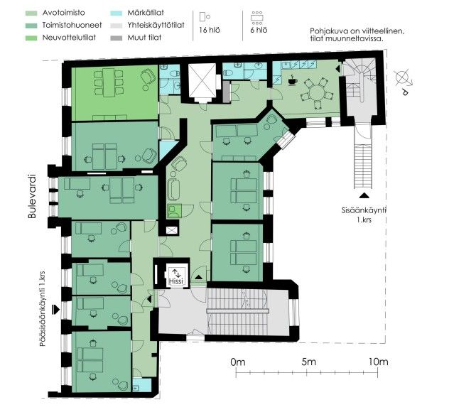
Tarjotaan vuokralle Tyylikäs ja siisti toisen kerroksen 252m2 toimistotila Bulevardin vehreydessä. Tilasta erinomaiset näkymät ja kaksi sisäänkäyntiä näyttävästä porraskäytävästä. Tila on suunniteltu mukautumaan käyttäjänsä tarpeisiin, ja siinä on suihku- ja wc-tilat, jotka lisäävät käyttömukavuutta.
Sijainti on vertaansa vailla Helsingin ydinkeskustassa, Mannerheimintien ja Bulevardin kulmassa. Arvokiinteistö on alun perin suunniteltu asuinrakennukseksi, mutta se on muokattu huolellisesti toimitilakäyttöön. Theodor Höjerin suunnitteleman rakennuksen sisätilat vangitsevat katseen upeilla kattomaalauksilla ja koristeellisilla yksityiskohdilla. Vuonna 1890 valmistunut rakennus on entisöity vastaamaan nykyajan vaatimuksia.
Kiinteistöltä on erinomaiset liikenneyhteydet, ja kaikki ydinkeskustan palvelut ovat kävelyetäisyydellä. Autoilijoille on tarjolla parkkipaikkoja kiinteistön omassa hallissa sekä lisäpaikkoja läheisissä pysäköintilaitoksissa, kuten Aimo Park Erottajassa. Kiinteistö on saanut BREEAM In-Use -sertifikaatin tasolla Excellent (osa 1 – kiinteistö) ja Outstanding (osa 2 – ylläpito), ja sen tilat on suunniteltu tarjoamaan terveelliset ja viihtyisät työolosuhteet, kuten laadukkaan sisäilman ja hyvän lämpömukavuuden.
Ota yhteyttä ja tule tutustumaan!
www.blanctoimitilat.fi
Joonas Nuutinen, toimitila-asiantuntija
+358 40 754 5408
joonas.nuutinen@blanckiinteisto.com
HUOM! Tilan hakijalle palvelumme on maksuton!
