Vuokrataan toimistotilat - Jyväskylä
Salvesenintie 6, Jyskä, 40420 Jyväskylä #10829219
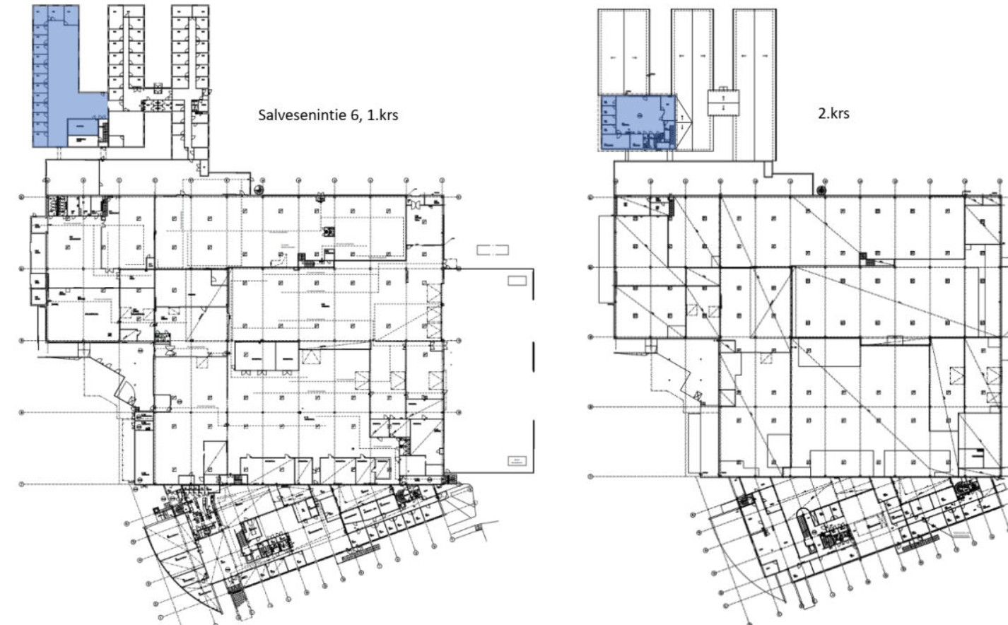
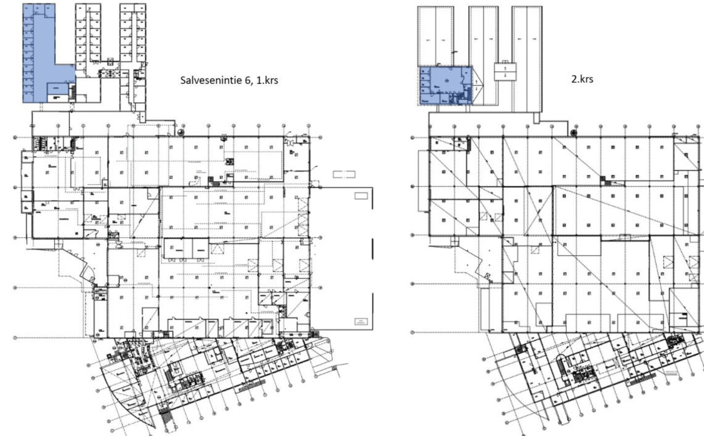
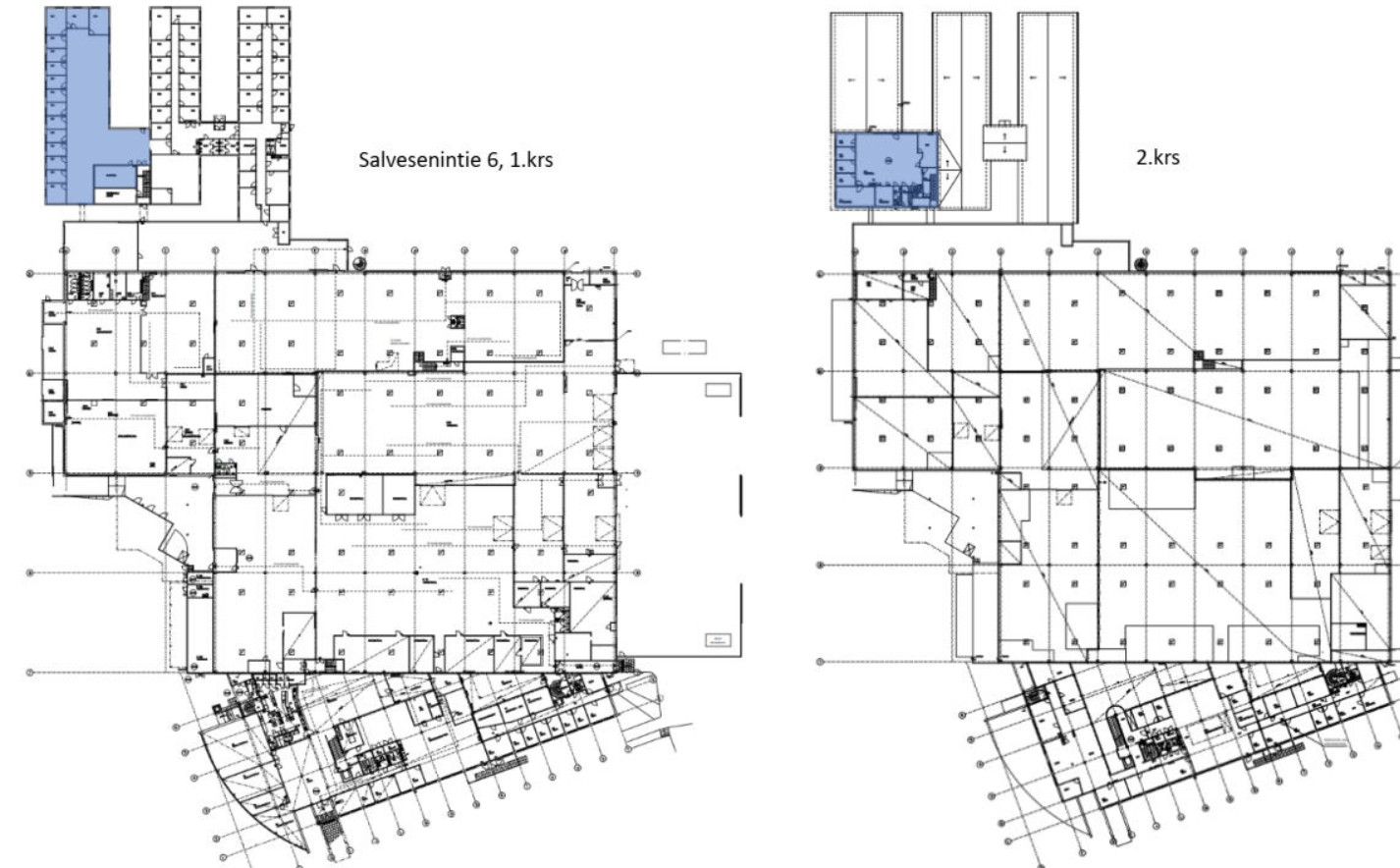
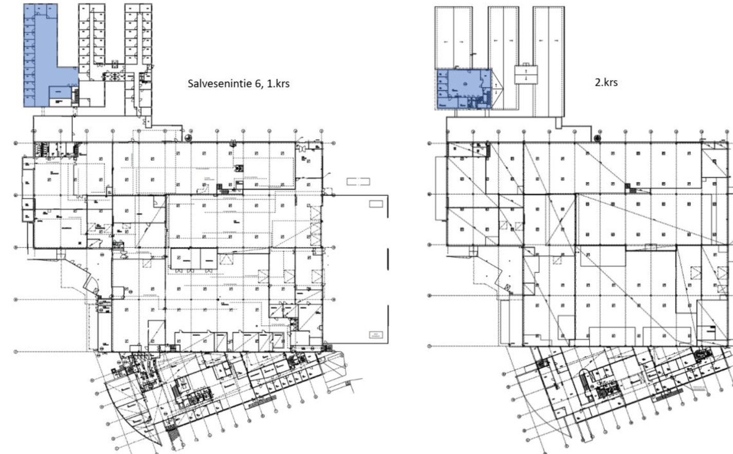
Vuokrattavana heti vapaana 1400 m² toimistotila Jyväskylän Jyskän kaupunginosasta!
Ensimmäisen kerroksen tilava toimistokokonaisuus sijaitsee sivurakennuksessa ja on helposti jaettavissa pienempiin yksiköihin, tarpeen mukaan.
Tila soveltuu erinomaisesti monenlaiseen toimistokäyttöön ja tarjoaa joustavasti mahdollisuuksia yrityksesi kasvulle. Hyvä sijainti ja toimivat kulkuyhteydet.
Ota yhteyttä ja sovi tutustumiskäynti!
Vuokraan lisätään alv + kulut.
Ota yhteyttä ja kysy lisää!
www.blanctoimitilat.fi
Masa Hakala
masa.hakala@blanckiinteisto.com
+358 40 964 2482
Osoite
Salvesenintie 6, 40420 Jyväskylä
Tilatyyppi
Toimistotilaa
1440 m2
Vapautuu
Kysy
Ota yhteyttä
Pyydä lisätietoa
