Vuokrataan toimistotilat - Turku
Apilakatu 13, Peltola, 20740 Turku #10829023
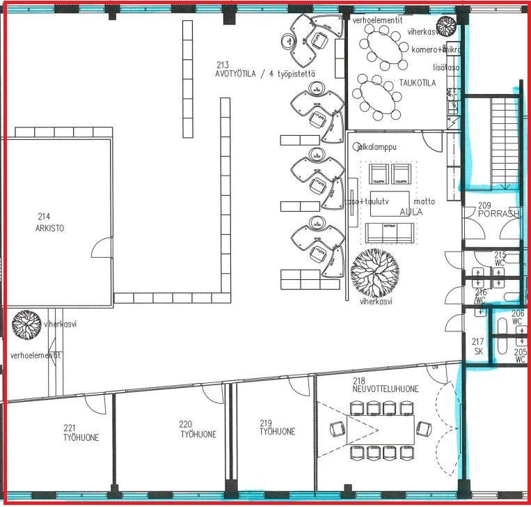
Vuokrataan siistiä toimisto- sekä tuotantotilakäyttöön soveltuva tila noin 10 minuutin matkan päässä Turun keskustasta. Pääasiallisesti avotilasta ja ryhmätyöskentelytiloista koostuva tila sijaitsee rakennuksen 2. kerroksessa. Tilassa on hyvä valaistus, reilun kokoinen keittiö sekä wc- ja sosiaalitilat. Koneellinen ilmanvaihto jäähdytyksellä sekä lämmitys lisäävät työskentelymukavuutta. Parkkipaikkoja löytyy runsaasti sekä kiinteistön pihalta että tien varresta.
Pinta-alaa ei ole tarkistusmitattu.
Vuokraan lisätään alv + kulut.
Lisätiedot ja yhteydenotto:
www.blanctoimitilat.fi
Toni Niskanen
+358 44 0758 171
toni.niskanen@blanckiinteisto.com
Osoite
Apilakatu 13, 20740 Turku
Tilatyyppi
Toimistotilaa
350 m2
Vapautuu
Heti vapaa
Kerros
2
Ota yhteyttä
Pyydä lisätietoa
