Vuokrataan toimistotilat - Helsinki
Salomonkatu 17, Kamppi, 00100 Helsinki #10828833
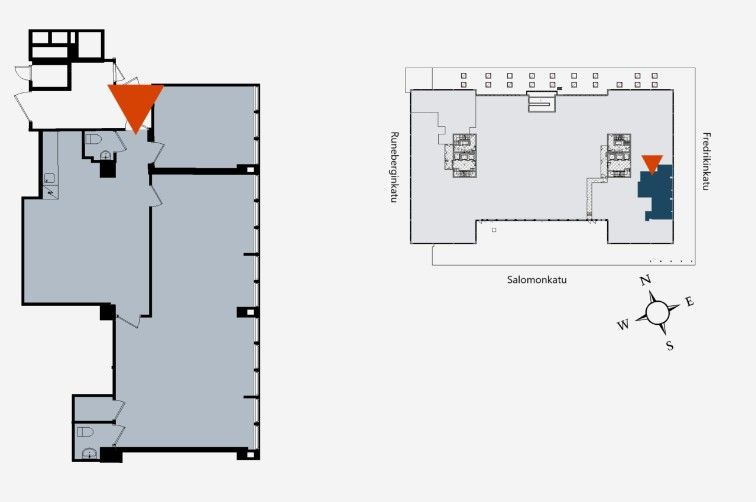
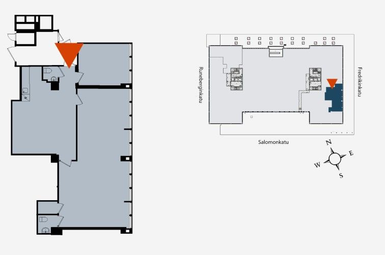
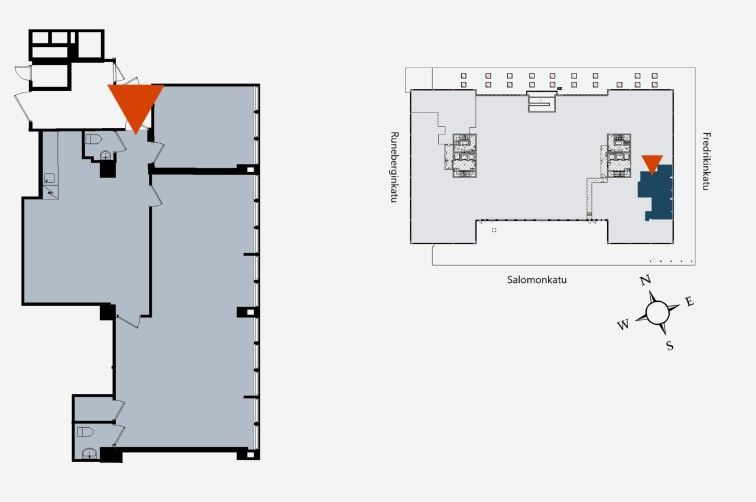
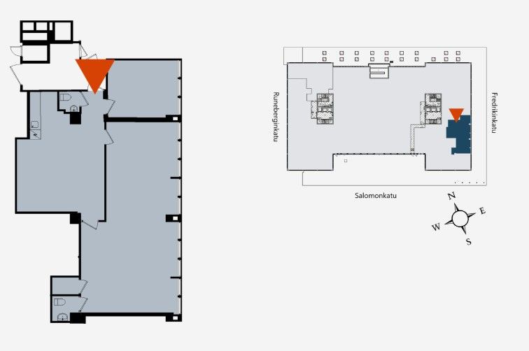
Vapautumassa kompakti toimistotila, joka sisältää avotilaa ja kaksi erillistä toimistohuonetta.
Autotalo on Kampin ytimessä sijaitseva perinteikäs kiinteistö, joka tarjoaa modernia ja hyväkuntoista toimitilaa. Vuonna 2015 valmistunut laaja perusparannushanke toi rakennukseen nykyaikaiset ratkaisut ja avarsi tiloja vastaamaan paremmin vuokralaisten tarpeita. Näyttäväksi uudistettu aulatila luo edustavan ensivaikutelman.
Vuonna 1958 valmistunut Autotalo on osa Kampin Autotalokorttelia. Rakennuksessa on 12 kerrosta sekä kolme maanalaista kerrosta, joissa sijaitsee pysäköintihalli yksityisautoilijoille. Kohde sijaitsee Kampin kauppakeskuksen vieressä, erinomaisilla yhteyksillä metrolla, raitiovaunulla ja busseilla.
Ota yhteyttä ja tule tutustumaan tähän toimivaan toimitilaan Kampin sydämessä!
www.blanctoimitilat.fi
Joonas Nuutinen, toimitila-asiantuntija
+358 40 754 5408
joonas.nuutinen@blanckiinteisto.com
Palvelumme tilanhakijalle on maksuton!

Blanc Toimitilat
Harri Laisto
Toimitila-asiantuntija, CEO, Kaupanvahvistaja, LKV
Näytä puhelinnumero
+358405365590