Vuokrataan liiketilat - Espoo
Tapiontori 3, Tapiola, 02100 Espoo #10828774
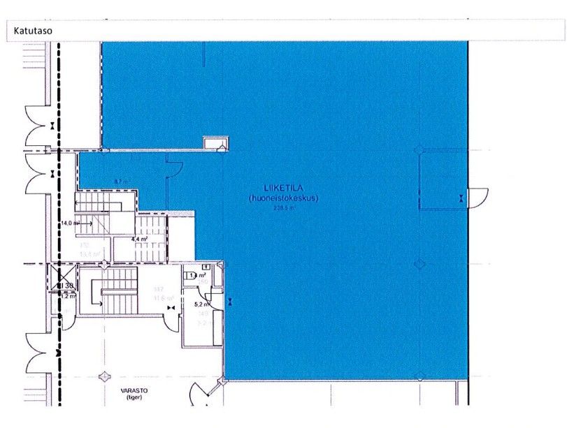
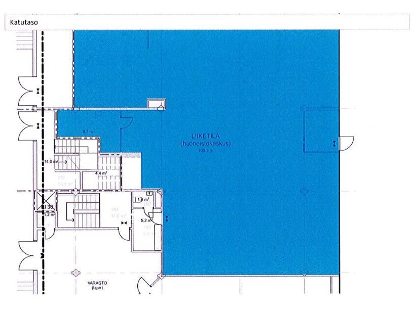
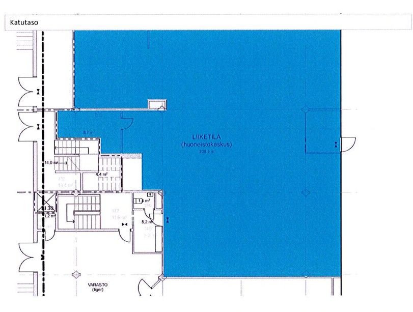
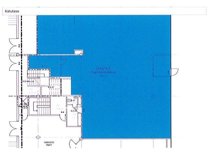
Vuokrataan liiketilaa Kauppakeskus Ainoan vierestä. Tilassa liiketilan pinta-ala on n. 240m2 ja alakerrasta löytyy sosiaali ja varastotilat. Tilassa on hyvä valaistus, suuret näyteikkunat sekä jäädytys. Vuokraan lisätään alv + kulut (vesi ja sähkö)
Ota yhteyttä ja kysy lisää!
www.blanctoimitilat.fi
Harri Laisto, LKV, Kaupanvahvistaja
harri.laisto@blanckiinteisto.com
+358 (40) 536 5590
Tiesitkö, että tilan hakijalle palvelumme on maksuton!
Osoite
Tapiontori 3, 02100 Espoo
Tilatyyppi
Liiketilaa
310 m2
Vapautuu
Heti vapaa
Ota yhteyttä

Blanc Toimitilat
Harri Laisto
Toimitila-asiantuntija, CEO, Kaupanvahvistaja, LKV
Näytä puhelinnumero
+358405365590
Pyydä lisätietoa