Vuokrataan toimistotilat - Helsinki
Työpajankatu 10, Kalasatama, 00580 Helsinki #10828721
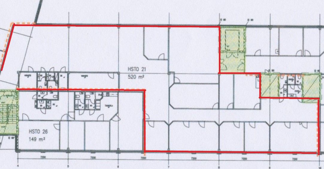
Tervetuloa Kalasataman sydämeen, missä vuokrattavana odottaa upea toimistotila Helsingin Yrittäjätalossa, aivan Kauppakeskus Rediä vastapäätä. Loistavalla sijainnilla 4. kerroksessa tarjoamme sinulle 520m2 muuntojoustavaa tilaa, joka soveltuu monenlaiseen toimintaan.
Tämä tila on enemmän kuin vain toimisto – se on mahdollisuus luoda inspiraatiota ja menestystä. Kohde on helposti saavutettavissa omalla autolla tai julkisilla, ja se on täynnä potentiaalia eri toimialoille. Useat erikokoiset huoneet, neuvottelutilat ja avotila antavat mahdollisuuden luoda juuri sellaisen työympäristön, joka vastaa yrityksesi tarpeisiin.
Sisään astuessasi sosiaalitilat sijaitsevat heti vieressä, täydellisellä paikalla aula/vastaanottotilaa varten. Tilassa on kaikki tarvittava, mikä tekee yrityksen arjesta sujuvaa ja tehokasta. Suuri tavarahissi kuljettaa tavarat vaivattomasti 4. kerrokseen, ja kiinteistön sisäpihalla sijaitseva lastauslaituri mahdollistaa suuremmankin tavaran kuljetuksen tiloihin.
Kiinteistössä toimii monipuolinen joukko yrityksiä, kuten maahantuonti, jooga, toimisto, hammaslääkäri ja painotalo. Nykyiset toimijat pitävät kiinteistön elävänä, jossa verkostot kasvavat.
Tämä toimistotila on ennen kaikkea mahdollisuus luoda menestystarina. Ota rohkeasti yhteyttä ja varaa aika näyttöön – täällä työskentelet enemmän kuin toimistossa, täällä työskentelet yhteisössä, joka inspiroi ja tukee liiketoimintaasi.
Vuokraan lisätään alv + kulut
Ota yhteyttä ja kysy lisää:
www.blanctoimitilat.fi
Harri Laisto, LKV, Kaupanvahvistaja, Yrittäjä
harri.laisto@blanckiinteisto.com
+358 40 536 5590

Blanc Toimitilat
Harri Laisto
Toimitila-asiantuntija, CEO, Kaupanvahvistaja, LKV
Näytä puhelinnumero
+358405365590