Vuokrataan toimistotilat - Espoo
Ahventie 4, 02170 Espoo #10828687
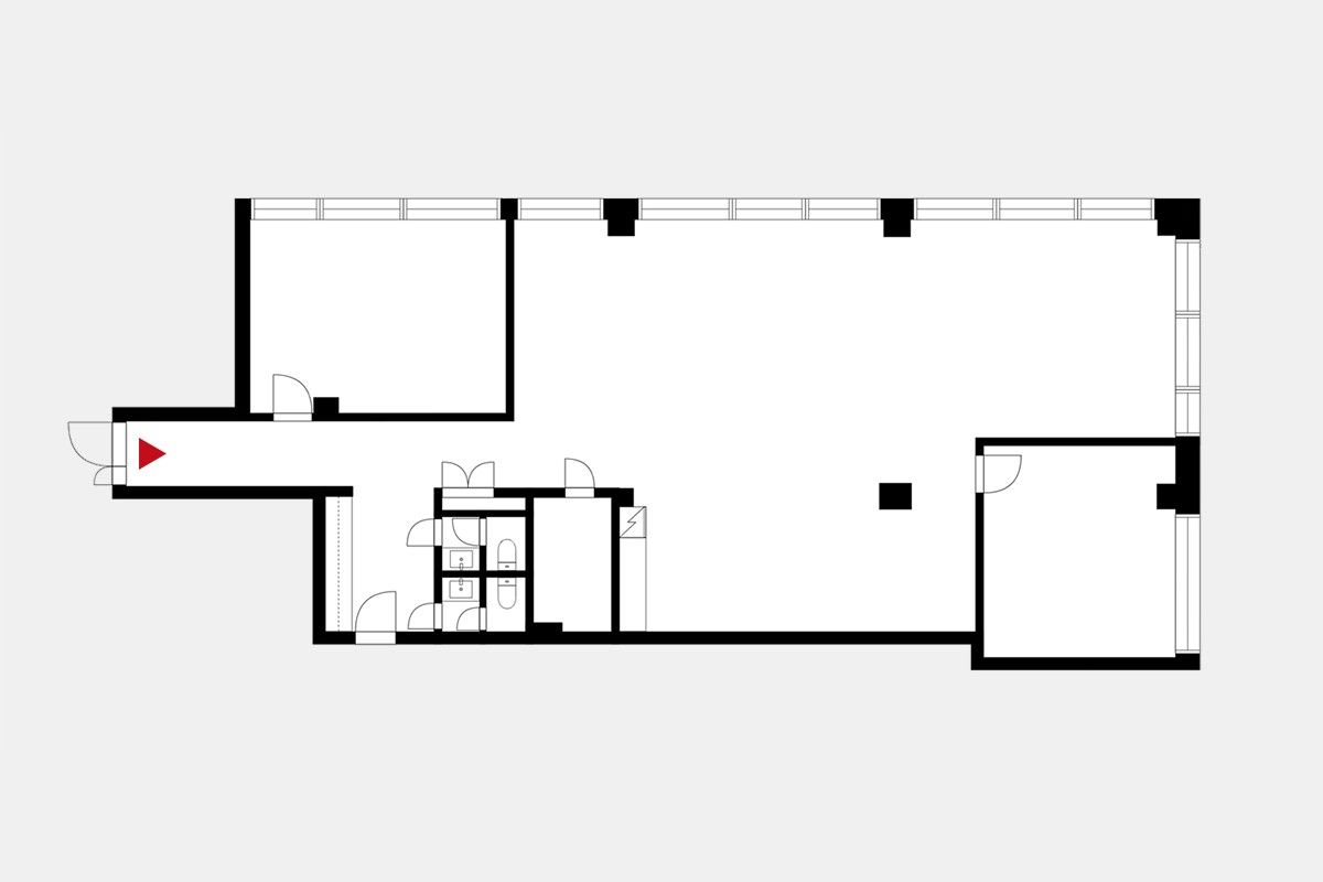
Vuokrataan 3.kerroksen toimistotilaa Ahti Busines Parkissa Haukilahdessa. Kohde käsittää niin avotilaa ja neuvottelutilat, avaran näköalan ja valoisat tilat, sosiaalitilat ja keittiön.
Kohteessa on hyvät liiketoimintaa tukevat palvelut vuokralaiselle, kuten aulapalvelu, vuokrattavia kokous- ja neuvottelutiloja, laadukas lounasravintola sekä reilusti pysäköintitilaa. Ahti Business Parkille on myönnetty myös ympäristösertifikaatti.
Kohteen saavutettavuus on mitä mainioin, koska kohde sijaitsee Länsiväylän varressa. Omalla autolla Helsingin keskustaan 15 min ja Matinkylään Ison Omenan kauppakeskukseen n. 5 minuuttia. Pysäköintipaikkoja autohallissa ja ulkokannella. Lähin bussipysäkki on aivan talon vieressä ja Niittykummun metroasema vain kävelymatkan päässä. Kiinteistössä on myös laadukas pyöräparkki ja siistit pukuhuonetilat työmatkapyöräilijöille.
Vuokraan lisätään alv + kulut (kysy lisätietoja Toimitila-asiantuntijalta)
Lisätiedot ja yhteydenotto:
www.solidhousetoimitilat.fi
Harri Laisto
+358 40 536 5590
harri.laisto@solidhouse.fi
Hilkka Laakso
+358405793303
hilkka.laakso@solidhouse.fi

Blanc Toimitilat
Harri Laisto
Toimitila-asiantuntija, CEO, Kaupanvahvistaja, LKV
Näytä puhelinnumero
+358405365590