Vuokrataan toimistotilat - Oulu
Isokatu 32c, Keskusta, 90100 Oulu #10828613
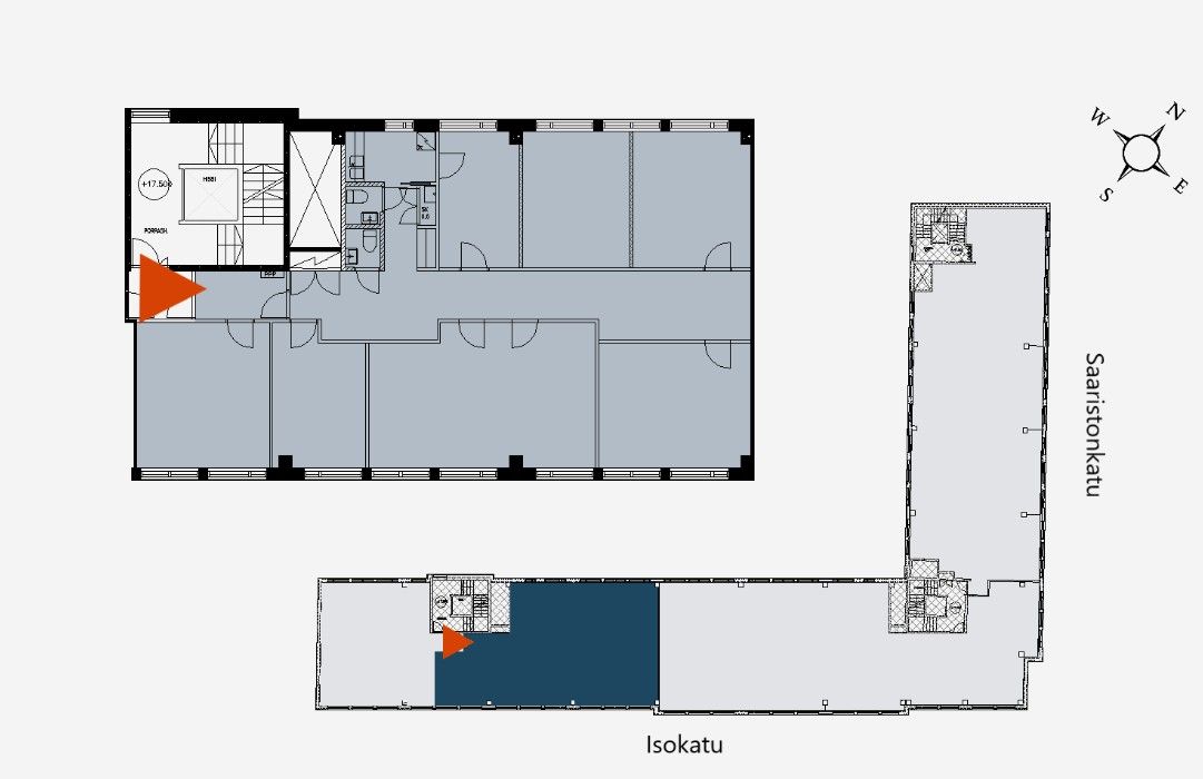
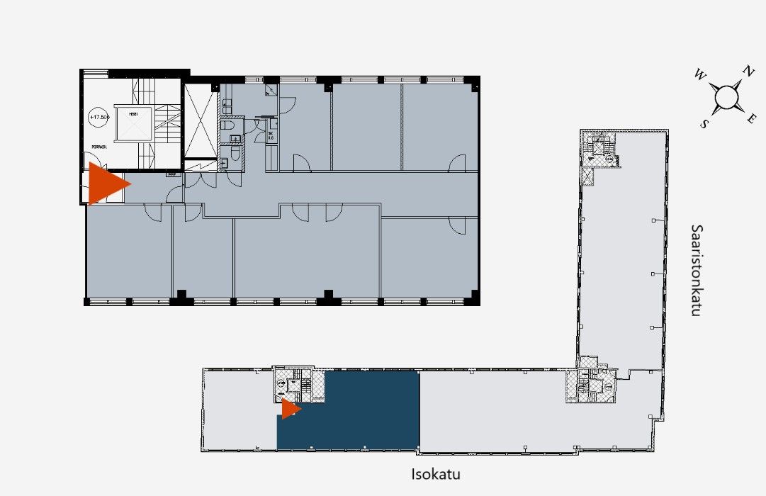
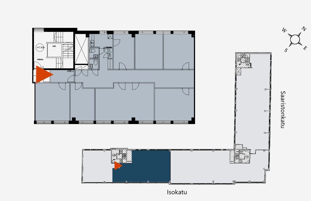
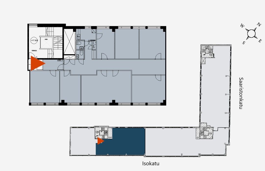
Vuokrataan heti vapaa toimistotilaa Oulun ydinkeskustasta. Tilassa mm. useita huoneita, koneellinen ilmanvaihto ja laminaattilattia. Kohde sijaitsee rakennuksen 4.kerroksessa. Tila on heti vapaa.
Lisätiedot ja yhteydenotto:
www.blanctoimitilat.fi
Harri Laisto
+358 40 536 5590
harri.laisto@blanckiinteisto.com
Osoite
Isokatu 32c, 90100 Oulu
Tilatyyppi
Toimistotilaa
147 m2
Vapautuu
Kysy
Ota yhteyttä

Blanc Toimitilat
Harri Laisto
Toimitila-asiantuntija, CEO, Kaupanvahvistaja, LKV
Näytä puhelinnumero
+358405365590
Pyydä lisätietoa